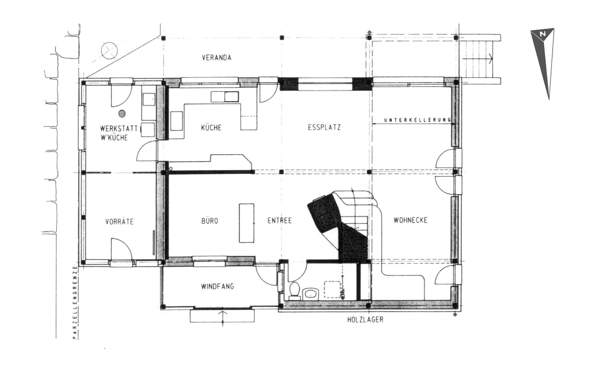
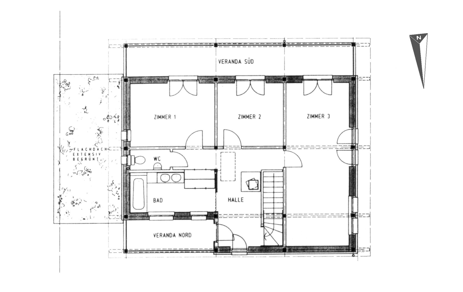
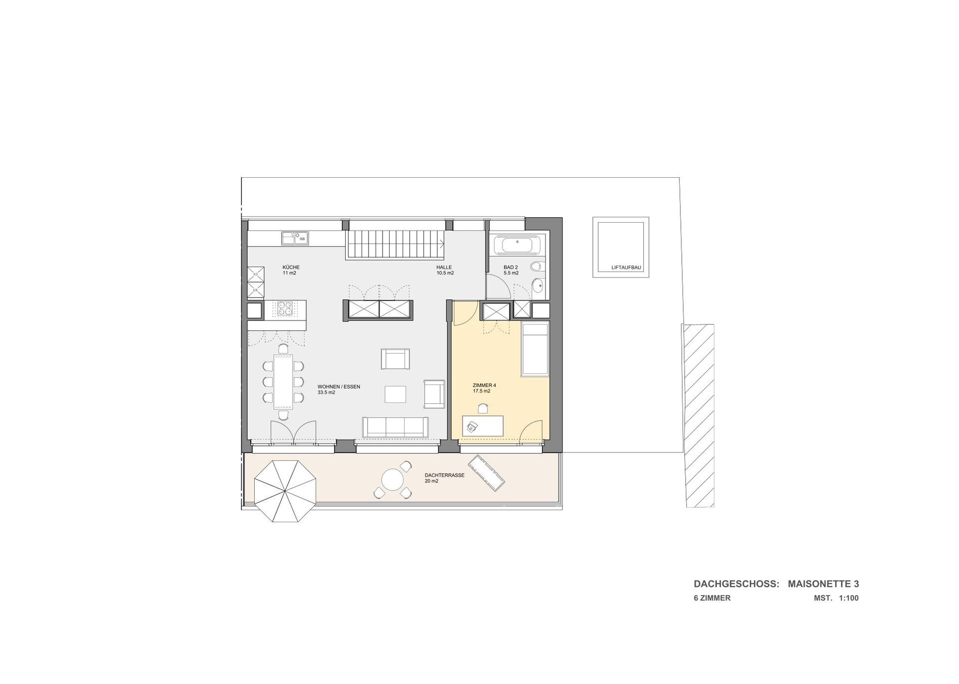
Öko-Einfamilienhaus im Dorfkern von Ettingen
Neubau EFH in Brettstapelbauweise
Passivhaus-Dämmstandard ohne Komfortlüftun
Gebäudevolumen nach SIA: 1'300 m3
Keller kalt: 350 m3, EG + OG warm: 615 m3, Dachraum kalt 135 m3, Carport und Anbau 175 m3, Holzdeck 25 m3
Beheizte Brutto-Wohngeschossfläche: 196 m2 EG und OG
Bauzeit: Abbruch altes Haus August 2010, Aushub September 2010 - Einzug Ende August 2011
(verlängerte Bauzeit, viel Eigenleistung Bauherrschaft)
Detailbeschrieb
- An Stelle des neuen EFHs stand ein kleineres EFH aus den 50er Jahren, welches sich aus Kostengründen nicht für einen Umbau inkl. Raumerweiterung anbot. Der Abriss war die Konsequenz.
- Das Einfamilienhaus ist ganz unterkellert. Bodenplatte und Kellerwände in Eisenbeton. Ausführung: BG Gschwind, Therwil Ein späterer Ausbau eines Kellerteils ist vorgesehen. Sockel aussen 6 cm EPS Dämmung
- Das Gebäude entspricht vom Dämmstandard einem Minergie-P Bau und besteht aus vorgefertigten Holzbau-Brettstapelelementen (Bresta). Ausführung: Tschopp Holzbau Hochdorf
- Gebäude Dämmung in Borat freier Zellulose
- Die Decke über dem Keller und dem OG sind als ausgedämmte Hohlkasten ausgeführt.
- Das Dach ist als ausbaufähiges Sattel-Kaltdach ausgeführt.
- Ein Holzdeck an der Ostseite bildet den Sitzplatz, der nachträglich mit einem Balkon teilweise gedeckt wurde.
- Ein offener Anbau an der Nordseite und ein Carport mit Holzlager vom Haus entfernt als Schutz zur Strasse, bestimmen die Aussenräume.
- Fassade in offener Trapezleistenschalung in Weisstanne ist aus lokalem Holz "vorvergraut"(Boehme-Produkt).
- Auf den Holzbau-Elementen den Aussenwände-Innenseiten wurden als Speichermasse und klimaregulierendes Element 60 mm starke Lehmplatten angebracht. Die Innentrennwände wurden mit 25 mm Lehmplatten belegt. Die Montage derer war tückisch, weil sich die Montage zwar für den Selbstbau eignet, aber akkurates Arbeiten konsequent und unbedingt erforderlich war. Die Platten können sich bei nicht ganz satter Montage werfen, was zu Feinrissen im Verputz trotz Netzeinbettung führen kann.
- Der Lehmdeckputz wurde vor Ort mit weissem Tonpulver Laufener Kalksand hergestellt.Der Baugrund wies geeigneter Baulehm auf, doch sprach die Winterzeit gegen die Lehmarbeiten mit Ortslehmaufbereitung. Lehmdeckputz mit hellem Tonpulver, in Nasszonen Sumpfkalkputz, Ausführung: Lehmbaukollektiv Laufen
- Bodenschüttung 10 m3 örtlicher Aushublehm OG als Speichermasse Erweiterung
- Böden innen in 35 mm Weisstanne Riemen A/B auf schwimmender Lattung
- EG Brettstapeldecke auf Sicht belassen Die 3-Schichtplatten-Deckenuntersichten im OG in Sichtqualität unbehandelt
- Beheizung: Grundofen mit Herdstelle, Ofenbank und Satellit (OG), Ausführung: Hügin Ofenbau Witterswil
- Die Holz-Metallfenster sind 3-fach (Glas U-Wert 0.6) verglast. Ausführung: 4B Hochdorf
- Elektroinstallation, Ausführung: KOLB AG Ettingen
- Küche, Ausführung: WEIZENKORN Werkstätte Basel
- Regenwasser via Trennsystem in die Kanalisation
- Dachfläche Carport extensiv begrünt
- Die Bauherrschaft legte Wert auf einen grossen Anteil Selbstbau, um die Kosten zu drosseln.
- Eigenleistungen Bauherrschaft: Montage der Holzschalung, Lehmdeckenschüttung, Anbringen der Lehmplatten, Verlegen Riemenböden, Malerei Türen, Fensterleibungen und Treppengeländer. Holzdeck, Balkon und Anbau durch Bauherrn (gelernter Zimmermann)
Öko-Einfamilienhaus in Hochwald
Neubau ÖKO-EFH in Minergie-Dämmstandard ohne Komfortlüftung
Gebäudevolumen nach SIA: ca. 1'040 m3
Keller kalt: 220 m3, EG und OG warm: 600 m3
Carport, Wintergarten, Decks etc.: ca. 220 m3
Bruttogeschossfläche beheizt: 190 m2
Bauzeit: inkl. Eigenleistungen Bauherrschaft Juli 2007 bis März 2008
Detailbeschrieb
Beschrieb zum Bau
- Das W1-Öko-Einfamilienhaus ist ganz unterkellert und in Eisenbeton ohne Decke ausgeführt.Ausführung: Urs Kilcher Dornach
- Die Unterkellerung im Kalk-Baggerfels Untergrund war für das Aushubunternehmen ein aufwändiges Unterfangen, was die Aushubkosten sehr verteuerte. Ausführung: Terraluk Laufen
- Der 2-PW-Carport, der Wintergarten und die Decks stehen auf Einzel- resp. Streifenfundamenten und bilden die in Holz gebauten Aussenräume.
- Der Systemholzbau "Haus mit Ursprung" von Schärholzbau Altbüron liegt auf den Kellerwänden auf und besteht aus gedämmten Boden- resp. Deckenelementen. Die sägerohe, offene und vertikal versetzte Fassadenschalung ist aus lokaler Weisstanne gefertigt und mit "Faluröd-Slamfärg" (Schlämmfarbe) gestrichen.
- Dämmung in Elementen aus Borat freier Zellulose, in der Zimmerei eingebaut
- EG mit sichtbarer Balkendecke in CH-Tanne/Fichte. Untersicht zwischen Balken sowie die Dach elementuntersicht OG aus Formaldehyd-freien, sichtbaren 3-Schichtplatten. Böden EG und OG erhielten im Unterlagsboden eine Installationsebene für die Heizung- und Elektroverteilung. Darüber wurde der schwimmende Riemenboden im Pavathermfloor-System eingebaut. Bodenriemen EG in geölter Eiche (D) und OG Weisstanne (D)
- Elektroinstallation in Anlehnung an Elektrobiologie, aber keine abgeschirmten Kabel
- Beheizung: Luft-Wasser-Wärmepumpe. Wärmeverteilung mit Wandheizungen System Thermotec. Heizregister in Ortslehmputze eingebettet, Ausführung: Müllern Haustechnik Bärschwil
- Fenster: Typ "Fenlife" aus Kostengründen IV 1.0, Ausführung: Fenster Setz Schötz
- Küche: IKEA
- Dachfläche Carports extensiv begrünt
- Regenwasser via Versickerungskoffer (Kalksteinschroppen) ins Terrain abgeleitet
Spezielles zum Lehmbau
Für die Lehmarbeiten konnte der Lehm nicht aus dem Aushub gewonnen werden, weil die oberste Erdschicht zu stark mit Steinen durchsetzt war. Ergo wurde der Lehmputz örtlich hergestellt.Laufener Kalksand und Opalit Tonmehl wurde als 6 cm dicker Grundputz in 3 Schichten aufgetragen.Vorgängig wurde die rohe Diagonalschalung mit Schilfrohrmatten versehen. Der Deckputz wurde mit hellem Tonmehl ausgeführt. Alle Lehmdeckputze wurden mit weisser HAGA-Lehmcolorfarbe gestrichen. Ausführung: Lehmbaukollektiv Laufen
Eigenleistung Bauherrschaft
Der Anstrich der sägerohen Fassadenschalung und deren Montage, Antackern der Schilfrohrmatten
als Putzträger, verlegen der schwimmenden Riemenböden und Teil der Umgebungsarbeiten.
Öko-Einfamilienhaus am Rebberg in Dornach
Neubau EFH in Brettstapelbauweise
Passivhaus-Dämmstandard ohne Komfortlüftung
Gebäudevolumen nach SIA: 1'550 m3 (inkl. Stützmauer zur Hangsicherung)
Beheizte Brutto-Wohngeschossfläche: 312 m2
Bauzeit: Februar bis September 2008
Detailbeschrieb
zur Konstruktion
- Dreigeschossiges in den Hang gebautes EFH, Passivhaus-Dämmstandard, besteht aus Stahlbeton- arbeiten zur Hangsicherung, Fundamentplatte, Keller. Ausführung: BG Urs Kilcher Dornach
- Grundkonstruktion massiver Holzbau aus 9 bis 16 cm starken BRESTA Brettstapel-Elementen, Ausführung: Tschopp Holzbau AG Hochdorf LU
- Fassade Haus: offene Schalung (Weisstanne) mit Schlämmfarbe gestrichen Fassade Carport CH-Douglasien Schalung und Holzdecks unbehandelt
- Als klimaregulierendes Element wurde innen als Speichermasse auf die Fassadenelemente eine 6 cm starke Lehmputzschicht aus Ortslehm aufgetragen. In dieser Lehmschicht sind die Elektroinstallationen und die Wandheizregister eingebettet.
- Die Innenwände sind beidseitig mit 3 cm Lehm verputzt. Als Putzträger wurden immer Schilfrohrmatten angebracht.
- Der Lehmputz wurde vor Ort mit dem hervorragend geeigneten Aushublehm und gebrochenem Laufener Kalksand hergestellt. Einige wenige Deckputze wurden aus dem Handel bezogen. Ausführung: René Bär Lehmbau Zofingen
- Das Haus wird mit einer Holzpellets-Heizung beheizt. Pellets-Silo 20 m3, Ausführung: Müller Haustechnik Bärschwil
- Brauchwasser-Erwärmung unterstützt mit drei therm. Kollektoren (Carportdach)
- PV-Photovoltaik Anlage 1 Jahr nach Bauvollendung realisiert
- Gebäudeisolation in Borat freier Zellulose
- Attika- und Carportdach extensiv begrünt
- Die Holz-Metallfenster 3-IV 0.6, Ausführung: 4B Hochdorf
- Innendecken in Brettstapelelementen sichtbar und unbehandelt
- Elektroinstallationen elektrobiologisch, Ausführung: PEVO GmbH aus Arlesheim
- Schmutzwasser via Fäkalpumpe in höher gelegene Gemeindekanalisation
- Regenwasser via Biotop in Versickerungskoffer abgeleitet
- Küche Ausführung: WOHNGEIST Basel
- VOR Planungsbeginn radiästhetische Grundstück-Untersuchung
Strohballen-Einfamilienhaus in Wahlen
Neubau, lasttragendes Strohballen-Passivhaus
Architektengemeinschaft
Planung und Projektverantwortung: Atelier Werner Schmidt, mag.ach., 7166 Trun GR
Realisierung / örtliche Bauleitung: DEGEN HETTENBACH MÜLLER Architekten
Hauptdaten
Gesamtvolumen nach SIA: 1'352 m3
Hauptgebäude beheizt: 975 m3
Anbauten unbeheizt: 190 m3
Wohngeschossfläche netto: 173 m2
Bauzeit: Mai bis November 2005
Detailbeschrieb
Konstruktion
- Lasttragendes Strohballenhaus mit Wandstärken EG 120 cm und OG 50 cm
- Boden und Dach: strohgefüllte Holzbauelemente, jeweils 50 cm stark
- Strohballendimensionen: 120 x 40 x 220 und 50 x 35 x 70 cm, total 200 m3
- Etagendecke: Holzbalken mit Schiebeboden und 12 cm Lehmschüttung
- Anbauten unbeheizt in Holz Ta/Fi und Lärche
- Leichtbau-Trennwände mit Raumschallschutz
- Glasfassade in Pfosten-Riegelkonstruktion, U-Wert Glas 0.7
- Fenster Holz-Metall, CH-Lärche 3-fachverglast, U-Wert Glas 0.7
- Keine Unterkellerung. Streifenfundation und belüfteter Hohlraum
- Elektrobiologische Installation
- Thermische Solaranlage zur WW-Erzeugung, WW-Speicher 500 Lt
- Schwedenofen für sonnenlose Kaltwetterperioden
Materialisierung
- Aussenwandverputz 5 - 8 cm, aussen Kalk-, innen Lehmputz
- Wandoberflächen innen Lehmputz / teilweise Keramik
- Bodenbeläge EG: Schiefer / OG: Tannenriemen gewachst / geölt
- Küche in Eiche massiv geölt, mit Natursteinabdeckung
- Dacheindeckung in Welleternit rot
- Spenglerarbeiten in CNS matt
Aufbau Rohbau mit Baukran
- Am Montag wurden auf die vorbereiteten Fundamente die Bodenelemente versetzt, am Dienstag der EG-Wandaufbau, am Mittwoch die Balkendecke über dem EG, am Donnerstag der Wandaufbau OG. Am Freitag beendete die Montage der Dachelemente den Rohbau.
- Die Aufbauarbeiten wurden bei unsicherem Wetter im Juni 2003 ausgeführt und wurden erst am 4. Tag für zwei Stunden durch Regen gestört.
- Die erwarteten Setzungen der Strohballen betrugen pro Geschoss ca. 13 cm und kamen nach sechs Wochen zum Stillstand.
- Die Verputzvorbereitungen wurden im Anschluss ausgeführt. Es wurde beidseitig der Aussen-wände ein Geogitternetz aus Polypropylen (PP) angebracht, welches eine optimale Verbindung zwischen Stroh und Putz ergibt.
- Die sandwichartige Wand (Putz-Stroh-Putz) bildet den entscheidenden Stabilitätsfaktor.
- Der Verputz besteht aussen und innen inkl. Feinnetz-Einbettung und Deckputz aus 5 bis 6 Schichten.
Öko-Einfamilienhaus in Fehren
Neubau EFH in Niedrigenergie-Bauweise
Gebäudevolumen nach SIA: 960 m3
Beheizte Brutto-Wohngeschossfläche: 210 m2
Bauzeit: März bis September 2001 (6.5 Monate)
Detailbeschrieb
Baubeschrieb
- Das zweigeschossige, nicht unterkellerte Gebäude wurde in der Werkstatt der Zimmerei als Elementbau vorfabriziert und in zwei Tagen auf der Parzelle zusammengebaut. Ausführung: Daniel Blaser Holzbau, Laufen
- Die einzelnen Elemente des genau nordsüd-ausgerichteten Hauses setzen sich zusammen aus der Aussenhülle in hochgedämmter Holzrahmenbauweise, Fachwerkelementen der Innenwände, Hohlkastendecken und Dachelementen.
- Die Fassade ist in unbehandelter CH-Lärchen-Deckleistenschalung ausgeführt.
- Sämtliche Lehmarbeiten im Gebäudeinnern wurden durch die Bauherrschaft ausgeführt: die Ausfachung der Innenwände mit industriell gefertigten Lehmsteinen aus Freiburg i. Br.,die kleine Stampflehmwand in der Südfassade mit Wärmespeicherfunktion, die Lehmschüttung im Boden über dem EG und alle Lehmputze, deren Basismaterial aus dem Aushub stammen.
- Beheizt wird das Haus mit einem Lehm-Grundofen mit Wärmetauscher und Satelliten im OG und DG. Ausführung: Peter Ehrenzeller Ofenbau, Auslikon ZH
- Solarzellen auf dem Dach erwärmen das Brauchwasser und eine 6'000-Liter Regenwasser-nutzungsanlage verringert den Trinkwasserverbrauch. Das Trinkwasser wird mit einer Grander-Anlage belebt.
- Die Umgebung des Hauses ist natursensibel gestaltet: der wasserdurchlässige Vorplatz, Mager-bereiche mit einheimischen Hecken und Pflanzplätze sind durch einen Schwimmteich ergänzt worden.
- Vor Planungsbeginn wurde das Grundstück radiästhetisch untersucht.
Öko-Einfamilienhaus in Hofstetten
Neubau EFH in Niedrigenergie Brettstapel-Bauweise (nicht unterkellert)
Gebäudevolumen nach SIA: 1'070 m3
Beheizte Bruttogeschossfläche: 226 m2
Unbeheizte Gebäudeteile: Vorratsraum 3 m2, Anbau Geräte/Velos 30 m2, Carport 18 m2, Laube OG 8 m2
Planungsphase: Man hat sich 18 Monate Zeit genommen. Alle Beteiligten haben dabei wichtige Prozesse durchgemacht.
Bauzeit: Oktober 1999 bis Mai 2000
Detailbeschrieb
Geschichte Planung
- Zu Beginn der Zusammenarbeit hatte die Bauherrschaft die Vorstellung eines quadratischen Hauses am Rande der Parzelle. Nach der radiästhetisch-geomantischen Untersuchung des Baulandes, wurde die Idee des einbündigen Hauses aufgenommen. Die Ausrichtung nach Süden spielte für den Gewinn von Passivenergie (Sonne) eine entscheidende Rolle. Die gleichzeitige Planung des benachbarten Atelierhauses spielte in Bezug auf den Gebäudezwischenraum und die ganzjährige Besonnung des Hauses eine gewichtige Rolle.
Beschrieb
- Das zweigeschossige, nicht unterkellerte Haus besteht in seinem Kern aus BRESTA Brettstapelelementen. Ausführung: Tschopp Holzbau, Hochdorf LU
- Fassade unbehandeltes Lärchenholz, wie auch die Lärchenriemenböden im EG und die OG Tannenriemenböden aus Bergün GR
- Fenster in CH-Lärche IV 1.3, Ausführung Schreinerei Niklaus Stich, Kleinlützel
- Neben den BRESTA-Elementen, wurde die Speichermasse im Gebäude mit einer 10 m3 Löss-Lehmschüttung (Aushub Leimental) in der Balkendecke über EG erhöht. Der Einbau wurde in Eigenleistung mit vier Freunden und einem Förderband realisiert. Aus gleichem Grund wurde den die BRESTA-Aussenwände in beiden Wohngeschossen gestapelte 4 cm-Lehmplatten vorgestellt. Der Lehmstapel Vorsatz wurde zum grossen Teil von der Bauherrschaft mit Freunden unter unserer Anleitung ausgeführt. Der Lehmstapel Vorsatz, als auch die Zwischenwände wurden mit Schilfrohrmatten, aus der Schilfweberei in Ins BE, als Putzträger versehen. Kurz danach 2001 gab die letzte CH-Schilfweberei in Ins auf.
- Beheizung durch den Lehm-Grundofen mit Holzherd, Ofenbank (EG) und Satellit (OG),Ausführung: Peter Ehrenzeller Ofenbau, Auslikon ZH
- Brauchwassererwärmung durch die thermische Solaranlage auf dem Süddach
- Gebäudedämmung aus Borat freier eingeblasener Zellulose. Der Dämmstandard erreichte den Wert "NIEDRIGENERGIEHAUS".
- Dachraum (Estrich) als Zwischenklimazone eingesetzt
- Alle Wände mit farbigen Lehmputzen, Ausführung: Lehmbaukollektiv Laufen
- Küche: Bulthaup
- Als Kellerersatz dienen eine unbeheizte 4 m2 Vorratskammer und ein nordseitiger kalter Anbau (30 m2) zur Strasse.
- Angebunden an den Anbau ist der gedeckte laubenartige offene grosszügige Hausvorplatz,der zum Holzlager eine Verbindung hat.
- Der 1 PW-Carport ist "Anhängsel" im Westen.
- Alle Flächdächer extensiv begrünt
- Im OG dem Bad angehängt befindet sich eine Laube, welcher die Wäschetrocknung ganzjährlich aussen ermöglicht (WM im Bad).
Öko-Einfamilienhaus in Kleinlützel
Neubau Einfamilienhaus in Holzhäcksel-Leichtlehm-Bauweise
Gebäudevolumen nach SIA: ca.1'000 m3 (inkl. unbeheizte Bereiche 260 m3)
Beheizte Bruttogeschossfläche: 187 m2
Unbeheizte Bereiche: Teilunterkellerung 36 m2, 1G-Anbau 21 m2, Estrichraum 88 m2,
Veranden 33 m2 (inkl. Windfang verglast), Ausbau Estrichteil 2001
Bauzeit:
Baumeister- und Zimmerarbeiten: September bis Dezember 1996
Lehmbau bis Ausbau: Januar bis Dezember 1997
Finaler Endausbau: bis März 1998
Detailbeschrieb
- Teilunterkellerung in Beton, Naturboden durch Baumeister im dem Dorf
- Bodenplatte im nicht unterkellerten Teil mit Polymerbitumen-Abdichtung wegen aufsteigender Feuchtigkeit und Salpeterbelastung Untergrund (ehem. Stall)
- Holzskelettbau Nachbar Zimmerei Stich, Holz aus dem Kleinlützler Bann, nicht ofengetrocket
- Aussenwände in 32 cm Holzhäcksel-Leichtlehm und äusserer, winddichter 52 mm-Isoroofplatte. Oberflächen aussen: hinterlüftete Deckleistenschalung in Lärche aus Bergün GR, Oberflächen innen: Lehmputz 2-3 cm
- Decke über EG in Anlehnung an traditionelle Lehmwickeldecken aus Ortslehm und Strohhäcksel hergestellt, Holzhäcksel-Leichtlehm-Ausgleichsschicht bis OK Deckenbalken. Lattung auf Trittschallfilz, Tannenriemenböden aus Bergün GR
- Decke über OG mit raumseitig eingeschobener Sicht-Holzschalung, darüber Zellulosedämmung eingeblasen, Estrich mit Tannenriemenboden
- EG-Boden aus geschifteten Balken, Korkschrotschüttung 12 cm und Blindboden mit Lärchenkurzriemen aus Bergün GR
- Fenster IV 1.6 in CH-Lärche, Ausführung Schreinerei Niklaus Stich, Kleinlützel
- Dacheindeckung mit Ziegeln des ehemaligen Stallgebäudes
- Holzhäcksel für Leichtlehm aus sauberem Recycling (Herkunft Aarau) Tonmehl OPALIT für Holzleichtlehmmischung (600 kg/m3)
- Ortslehm: opaliner Geschiebelehm sehr steindurchsetzt. Für die Lehmwickeldecke musste der Aushublehm durch den Winterfrost und die Steine entfernt werden.
- Der Dachraum ist als Stauraum ein unbeheizter Zwischenklimaraum, der 1G-Werkstatt- anbau in Holz ist nicht beheizt. Dessen Flachdachbegrünung ist extensiv.
- Der Garten wurde sensibel in die bestehende Wiesen-Hain-Situation eingepasst.
- Die Parzelle wurde vor der Planung radiästhetisch erfasst und die Räume entsprechend platziert.
Selbstbau
- Die Bauherrschaft, eine junge vierköpfige Familie, übernahm für die Realisierung vorwiegend aus Kostenspargründen, viele Arbeiten. Allem voran den Lehmbau. Dieser wurde zusammen mit Freunden, Bekannten und dem bauleitenden Architekten realisiert. Die Vorarbeiten (Leiterli/Schilfmatten) wurden vom Bauherrn alleine ausgeführt.
- Die Elektroinstallation, den Kücheneinbau, die Plättliarbeiten u.a.m. wurden von weiteren Mitgliedern der Familie ausgeführt.
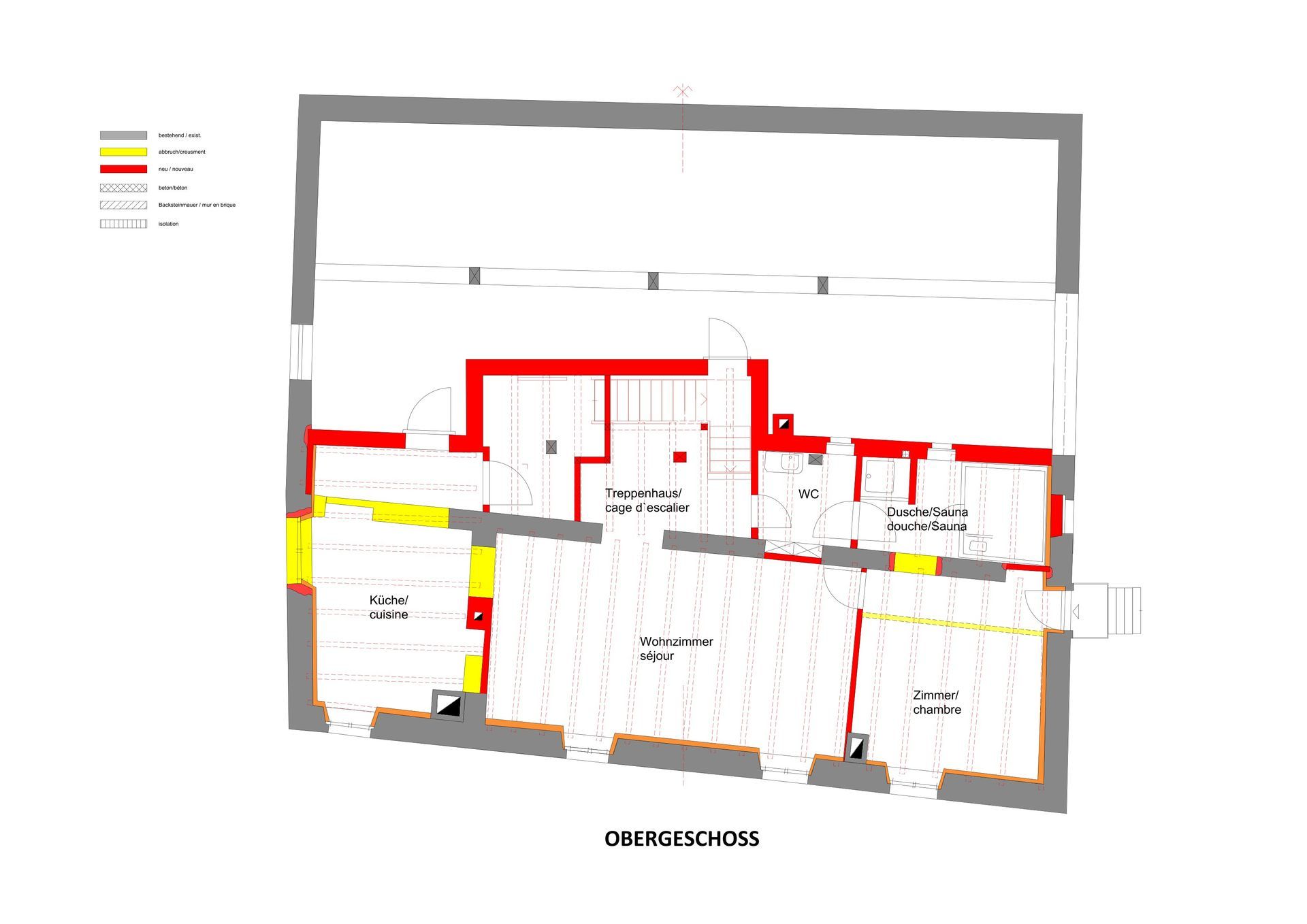
Umbau-Neubau Schüre zu Wohnraum, Therwil
Umbau / Neubau Schüre, Hinterweg 14, Therwil
Baujahr Gebäude: 1677 (Balkeninschrift)
Detailbeschrieb
Planun
Seit dem Umbau des anschliessenden Wohnhausteils im Jahr 2003, mit teilweiser Nutzung in den Schüreteil von 1677 hinein (Treppenhaus/Heizung/Wohnungszugang/Halle), war die Zeit reif, die ehemalige Schüre zu Wohnraum umzuwandeln. Im ruhigen Dorfzentrum nahe den Läden,
Restaurants, Cafés und dem öffentlichen Verkehr entstand hochwertiger Wohnraum.
Das Gebäudevolumen war gesetzlich geschützt, nicht aber die in die Jahre gekommene Bau- substanz. Leider war diese aufgrund des schlechten Zustandes der Holzkonstruktion von 1677 nicht erhaltenswert. Weiter verfügte das historische Gebäude über keine Fundamente.Ein Abbruch und Ersatzbau waren unumgänglich.
Realisierung
Es wurde entschieden, für den Neubau eine Abparzellierung vorzunehmen und geeignete Eigentümer zu finden. Eine Unterkellerung wurde nicht realisiert wegen der prekären Grundwasser-Situation.
Es wurde eine grosszügig strukturierte Wohnung über drei Stockwerke in das gegebene Volumen realisiert. Die gesamte Wohnnutzfläche beträgt rund 150 m2 und hat ein Volumen nach SIA von ca. 660 m3. Im EG hat es einen Gartensitzplatz im offenen Garten mit dem Nachbarhaus, im OG und DG jeweils zum Hof eine kleine Dachterrasse.
Energie
Die Wärmeerzeugung ist mittels gemeinsamer Erdsonden Wärmepumpe.
Zur Strasse hin wurde eine aufwändige Indach-PV Anlage realisiert und auf dem Nachbardach mit Aufdach-Elementen die gemeinsame PV-Anlage erweitert.
Planung: 2020
Abbruch: Februar 2021
Umbau-Neubau: März bis November 2021
Plane
Öko-Atelierhaus in Hofstetten
Eingeschossiges Zweiraum-Gebäude mit minimaler Unterkellerung
Gebäudevolumen nach SIA: 765 m3
Beheizte Brutto-Wohngeschossfläche: 105 m2
Bauzeit: ca. 18 Monate, inkl. Eigenleistung. Fertigstellung Frühling 2001
Detailbeschrieb
Konstruktion
- Eingeschossiges Zweiraum-Gebäude mit minimaler Unterkellerung, auf Einzelfundamenten
- Riegelkonstruktion aus im Bannwald geschlagenem Mondholz, in Büsserach gesägt, Ausführung: Emilio Stöcklin Zimmerei, Ettingen
- Fachwerk Ausfachungen innen aus 12 cm Lehmsteinen aus Waldkirch bei Freiburg i.Br. Deckleisten Holzschalung aussen aus Riehener Lärche
- Das ganze Gebäude ist mit Borat behandelter Schafwolle isoliert, die Fassade und das Dach mit Unterdachdämmplatte 52 mm in Holzweichfaser isoliert.
- Sämtliche Fenster und die inneren Schreinerarbeiten wurden ebenfalls aus Schweizer Holz angefertigt. Ausführung: Schreinerei Niklaus Stich, Kleinlützel
- Das unterlüftete Satteldach ist mit Polymer-Bitumenpappe eingedeckt.
- Das Dachwasser speist ein grosses Regenwasser-Fass, mit dem das WC gespült wird. Südseitig geht das Dachwasser in ein Feuchtbiotop. Überlauf in Versickerung.
- Mit einem thermischen Sonnenkollektor wird Warmwasser erzeugt.
- Als Wärmequelle, Kochstelle und Liegefläche dient ein massiger Lehm-Speicherofen.Ein Cheminée beheizt den Westflügel nach Bedarf.Ausführung Ofen: Peter Ehrenzeller Ofenbau, Auslikon unter Mithilfe Bauherrschaft
- Ausführung Ausfachungen in Lehmstein und die händischen Lehmputze: Eigenleistung Bauherr
Plane
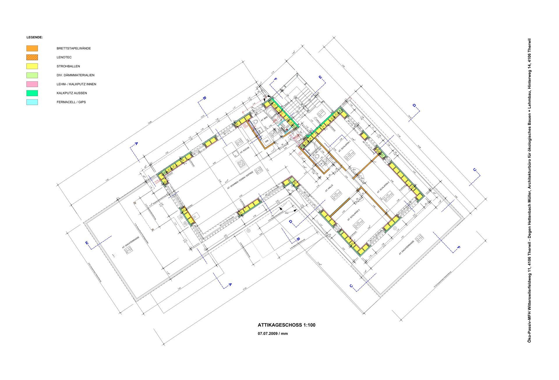
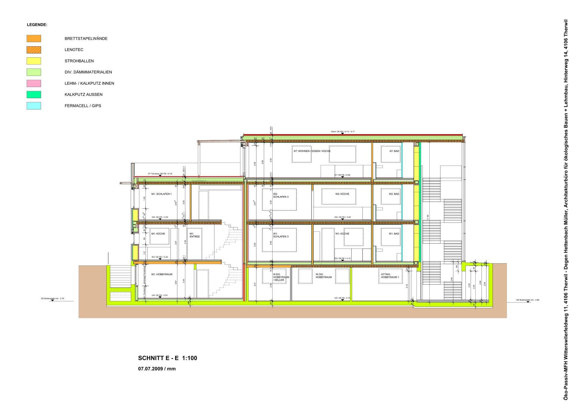
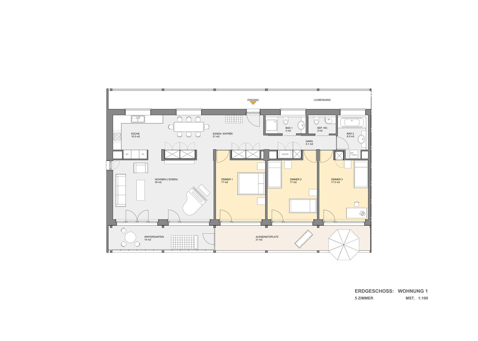
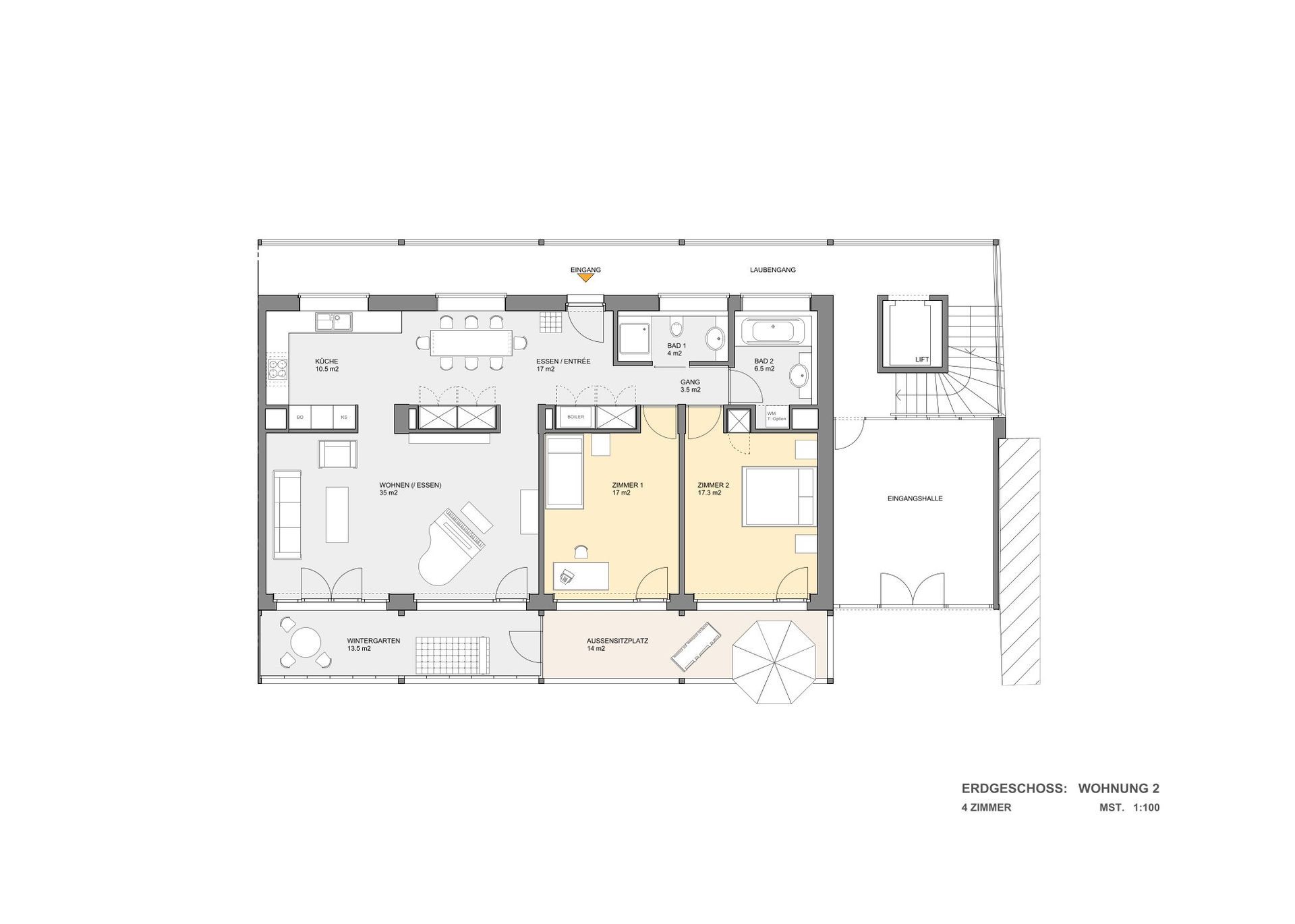
Strohballengedämmtes Öko-Mehrfamilienhaus in Therwil
2011 grösstes Strohballen gedämmtes Wohnhaus der Schweiz
Gebäudevolumen nach SIA: 4'040 m3
Nettogeschossflächen 5 Wohneinheiten total: 852 m2
Heizwärmebedarf: 77 MJ/m2/a (entspricht ca. 2.2 Liter Heizöl pro m2 und Jahr,
dazu kommen noch ca. 0.8 Liter für die Erzeugung des Warmwassers)
Detailbeschrieb
Konstruktion
- Die Grundkonstruktion des 3G-Holzbaus besteht aus Holzständern, umlaufendem Holzrahmenmit OSB-Plattenaussteifung und Brettstapeldecken, die innerhalb weniger Tage auf das vorgängig in Beton erstellte Untergeschoss versetzt wurden. Brettstapel Typ BRESTA sind aus rohem Fichten- holz mittels Hartholzdübel gefügte Wand-, Boden- oder Dachelemente. Planung und Ausführung Holzbau: Häring, Pratteln
- Diese Gebäudehülle wurde aussen mit dem ökologisch unschlagbaren Dämmmaterial Stroh, in Ballenform isoliert. Die Strohballen stammen aus der Nachbargemeinde Biel-Benken.Die Fassade wird mit einer offenen Holzlattenschalung geschützt. Die Schalung ist aus vor-vergrautem Fichtenholz "EcoGris" aus Glovelier JU. Das Attikageschoss wurde von der Materialisierung her vom übrigen Baukörper abgesetzt und erhielt eine hinterlüftete Fermacell-Fassadenplatte mit einen feinen naturfarbigen Kalk-Aussenputz.
- Die BRESTA Brettstapelelemente (Tschopp Holzbau, Hochdorf) wurden zwingend auch als Zwischenwände und Decken zwischen den einzelnen Wohneinheiten eingebaut. Grund: die gesetzlichen Schallschutzanforderungen mussten erfüllt werden.
- Die Innenwände sind mit einer 6 cm dicken Lehmschicht verputzt, in der die elektro-biologisch installierten Elektroinstallationen sowie die Wandheizregister eingebettet sind.
- Das Flachdach über der Attikawohnung und den OG-Wohnungen im Bereich der Dachterrasse hat ebenfalls einen Brettstapelkern, auf den eine Steinwolldämmung mit integriertem Gefälle aufgebaut wurde. Alle Dach- und Vordachflächen sind extensiv begrünt, die Dachterrasse mit Zementplatten belegt.
- Die Fundamentplatte und die im Erdreich liegenden Untergeschoss-Wände wurden in Stahl- beton ausgeführt und mit einer "weissen Wanne" gegen vorhandenes Hangwasser abgedichtet. Ausführung: BG Urs Kilcher, Dornach
- Grundsätzlich ist die gesamte Gebäudehülle über dem Erdreich (exkl. Flachdächer) dampf-offen, d. h. ohne Dampfbremsen/-sperren ausgeführt. Das Gebäude kann somit "atmen". Dies ist zusammen mit einer regelmässigen Querlüftung über die Fenster ein Grund, weshalb auf eine kontrollierte Lüftung verzichtet werden konnte.
- Das Gebäude wird primär mit passiver Sonnenenergie beheizt. Bei sehr kalten Aussentemperaturen und bewölktem Himmel wird die Sonne durch Erdwärme ergänzt, die von drei je 160 m tiefen Erdsonden zur Wärmepumpe mit Speichern gelangt.
- Die Verteilung der Heizwärme erfolgt via Wand-, Decken- und Bodenheizregister.
- Auf dem Flachdach wurde ein Jahr nach der Fertigstellung eine 16 kWp-Photovoltaik-Anlage realisiert, welche den Strombedarf der Wärmepumpe und den Allgemeinstrom-Verbrauch abdeckt.
- Der Minergie-P®-Standard wird rechnerisch erreicht. Das Gebäude wurde jedoch wegen bewusstem Verzicht auf eine kontrollierte Lüftung nicht zertifiziert
- Der Kanton Baselland hat den Bau unter "beispielhafte Ausführung" eingestuft und Fördergelder von CHF 50/m2 EBZ Energiebezugsfläche gesprochen.
Plane
Minergie P-Mehrfamilienhaus in Itingen
Neubau, erstes Minergie-P®-MFH des Kantons Baselland (2008)
Gebäudevolumen nach SIA: 5'890 m3
Nettogeschossflächen 7 Wohneinheiten total: 1'062 m2
Heizwärmebedarf exkl. Warmwasser: 57 MJ/m2/a
Bauzeit: 2007-2008
Detailbeschrieb
Konstruktion
- Die Grundkonstruktion besteht aus Stahlbeton-Decken und -Pfeilern und einem Mauerwerk aus Porenbeton (YTONG), das erdbebensicher mit Stahlbetonscheiben verstärkt ist.
- Auch aus Stahlbeton gebaut ist die Erschliessung mit Lift, Aussentreppen, Laubengängen auf der Nordseite und durchgehenden Balkone auf der Südseite.
- Die Fassaden wurden mit Mineraldämmplatten (MULTIPOR Xella) isoliert und mit einem mineralischen, ROT eingefärbten Verputz versehen.
- Die West-Hauptfassade sowie alle Fassaden des Attikageschosses sind mit einer feingliedrigen, unbehandelten CH-Lärchenschalung verkleidet.
- Die Fenster ohne Witterungsschutz wurden in Holz-Metall, die übrigen Fenster in Holz gestrichen ausgeführt.
- Sämtliche massiven Innenwände wurden aus Volllehmsteinen aufgemauert und mit Lehm verputzt.
Energiekonzept / Baubiologie
- Um eine hohe Behaglichkeit und eine gute Energiebilanz zu erreichen, wurde der Neubau in Massivbauweise bestmöglich nach bauökologischen/-biologischen Grundsätzen konzipiert.
- Eine Komfortlüftung trägt neben der Optimierung des Schallschutzes (das Gebäude steht an der Bahnlinie Basel-Olten mit über 400 Bahnbewegungen täglich) auch zur Senkung des Energieverbrauchs bei. Sie ist mit einer Wärmerückgewinnungsanlage kombiniert und verfügt über einen Pollenfilter.
- Über die optimiert verglaste Südfassade wird die passive Sonnenenergie genutzt.Die vorgestellten Balkone ermöglichen nur dann direkte Sonneneinstrahlung, wenn diese erwünscht ist, nämlich während der kalten Jahreszeit, d. h. im Winter mit niedrigem 19° Sonnenstand.
- Zusätzlichen Sonnen- und Sichtschutz gewährleisten elektrisch bedienbare Lamellenstoren.
- Zusammen mit einer überdurchschnittlich gedämmten Gebäudehülle und einer zentralen Erdsonden Wärmepumpe (sechs Bohrungen à je 100 m Tiefe), wurde der Standard Minergie-P® erreicht.
Plane
Ökologische Energie-Sanierung in Mehrfamilienhaus in Oberwil
Umfassende Sanierung von:
Fassaden, Dach, Heizung, Rollläden/Sonnenstoren, Küchen, Bäder, Garagentore
Bauzeit: August bis Oktober 2005
Detailbeschrieb
Energie-Sanierung MFH (Baujahr 1979) in Oberwil BL
Das MFH mit vier 4.5-Zimmer-Etagenwohnungen, einer 3.5-Zimmer-Dachwohnung und 2 Büroräumen im Sockelgeschoss erhielt eine konsequent ökologische Gebäudehüllen- sanierung. Das Ziel war, den Heizenergieverbrauch um mehr als 50 Prozent zu senken. Ein vager Wert bleibt das energiesparende Verhalten der Mieter.Der Gasheizkessel wurde erneuert und das Heizsystem mit einer Kollektorfläche von 10 m2 für die solare Warmwasserunterstützung mit 800 Liter Speicher ergänzt.
Ist-Zustand bis 2005
Die bestehende 6 cm dicke Styroporfassadendämmung aus dem Jahre 1979 zeigte schon nach weniger als 20 Jahren an, dass die Alterungsbeständigkeit dieser Dämmung sehr schlecht war. Eine Billigsanierung mit gleichem Material, wie sie von Malern und Gipser vorgeschlagen wurde, kam nicht in Frage. Die Styropordämmung wurde konsequenterweise für viel Geld entfernt und entsorgt. Gleiches geschah mit der wenig substanziellen Wert aufweisenden 12 cm Glaswoll- dämmung im Dach. Die Kosten für den Rückbau inklusive Entsorgung waren höher als der damalige Einbau der Dämmungen!
Fassaden
Die neuen Dämmungen sollten die Kriterien Langlebigkeit und Ökologie erfüllen. So wurden die Fassaden Ost, Nord und West mit einer 18 cm starken Zelluloseplattendämmung und einer vorvergrauten offenen Schalung aus CH-Douglasie versehen. Die Südfassade bot bei den Balkonanschlüssen einige Knackpunkte, was zu einer 12 cm-Steinwolle gedämmten Kompaktfassade führte, welche mit eigefärbten Silikat-Putz verputzt wurde.
Dach
Der zuvor völlig ungenügende sommerliche Wärmeschutz sowie der grosse Verlust an Heizwärme führte zur Lösung mit einer Dämmstärke von insgesamt 27.5 cm. Ausgeführt wurde eine Zwischen- sparren/Übersparrendämmung mit Zelluloseplatten und einem Holzweichfaser-Unterdach.
Weitere Anpassungen
Die Heizungsverteilungen in den Wohnungen erhielten einen zentralen Thermostatenregler. In 4 Wohnungen wurden die Badewannen durch altersgerechte Duschen ersetzt. Alle Küchen wurden durch FORSTER-Küchen ersetzt. Die bestehenden ROLLPAC-Storen wurden durch neue Lamellenstoren ersetzt. Es wurde eine zentrale GRANDER Wasserbelebungsanlage eingebaut. Garagentore neu mit Torautomatik
Plane
Gesamtsanierung eines Mehrfamilienhauses in Füllinsdorf
Gesamtsanierung eines Mehrfamilienhauses in Füllinsdorf
Baujahr 1973
5 Wohngeschosse mit 10 x 4-Zi.Wo, 5 x 3-Zi.Wo
neue thermische Solaranlage 40 m2
neue Gasheizung anstelle der Ölheizung
Waschküche/Trockenraum anstelle des Tankraums
Alle Wohnungen wurden praktisch auf den Rohbau zurück gebaut.
Gebäudevolumen gesamt: 5'600 m3
BGF: 1'366 m2
Bauzeit: Mitte März 2016 bis Ende März 2017 in 3 Etappen
Detailbeschrieb
Umfassende energetische (Minergie Standard) und technische Gebäudesanierung
Die Hausbesitzerin beabsichtigte, im 2016/2017 die Gesamtsanierung durchzuführen, ohne den Mietern zu kündigen. Die eine strangweise Sanierung, welche eine planerische und bauleiterische Herausforderung darstellte, wurde erfolgreich umgesetzt. Die involvierten Firmen leisteten Enormes
und ihnen gebührt grosser Respekt für ihre Flexibilität und die herausragende Kommunikation.
Fünf Mieter mussten jeweils im Haus um- oder ausgesiedelt werden. Die verbleibenden Bewohner
mussten über viele Monate flexibel mit Provisorien und einer nicht zu umgehenden zeitweise sehr lauten und staubigen Baustelle umgehen können.
Der Ersatz des Aufzuges Anfang 2017 dauerte 10 Wochen und verlangte von den Bewohnern der oberen Stockwerke eine gute Fitness ab.
Ausführende Firmen
- Gerüstbau Top-Gerüste Liestal
- Asbest Sanierung Dekonta Reinach
- Öltank-Rückbau Sutter-Joerin Arlesheim
- Baumeister Edmund Jourdan Muttenz
- Sanitäre Installationen Rosenmund Basel
- Elektrische Installation Dunkel&Schürch Bubendorf
- Heizung Wärmeverteilung Solaranlage Heinz Probst Frenkendorf
- Fenster Hinze Tecknau
- Gipserarbeiten Stamm Münchenstein
- Unterlagsböden Walo Frenkendorf
- Spenglerarbeiten Schneider Pratteln Metallbau Peter Tschudin Sissach
- Schreinerarbeiten Madörin Sissach
- Plattenarbeiten Williner Gelterkinden
- Parkettarbeiten A. Pfirter Pratteln
- Küchenbau Bucher Pratteln
- Malerarbeiten Werner Thommen Füllinsdorf
- Sonnenschutz Treudler-Laros Pratteln
- Brandschutz AGI Arisdorf
- Bauaustrocknung Krüger Grellingen
- Baureinigung Miru-Clean Liestal
- Aufzug Schindler Pratteln
- Umzüge Jost Reinach
- Entsorgungen EZB Bubendorf
- Gartenbau Garten-Team Buser Liestal
Planende Firmen
- Bauingenieur Schmidt&Partner Basel
- Geo-Techniker Kiefer&Studer Reinach
- Heizung-Lüftung Planer Blatter Ing. Liestal
- Sanitär Planer Sanplan Liestal
- Elektroplanung Pevo Arlesheim
- Gartenplanung Plantago Münchenstein
Plane
Aufstockung Reihen-Einfamilienhaus in Therwil
Aufstockung in Holzelement-Bauweise mit Strohballendämmung
Volumen Aufstockung nach SIA: 220 m3
Neue Netto-Mehrwohnfläche: 38.5 m2
Bauzeit: Mitte Mai bis Ende Juli 2011
Detailbeschrieb
Konstruktion Dachaufstockung
- Aussenwände und Dach in Holz-Fertigelementen mit Strohballen-DämmungDecke über bestehendem OG aus Holzbrettstapel-Elementen
- Innere Aussteifungsschicht Wand- und Dachelemente in Dreischichtplatten, weiss lasiert Brandschutzschicht im aussen über den Strohballen: Fermacell HD 15-Platten
- Horizontale Fassadenschalung in vorvergrauen Tannen-/Fichtenholz Fabrikat biood®
- Zusätzliche Dämmung der bestehenden Westfassade
- Bodenbelag exkl. Nasszelle in geöltem Kirschbaum Fertigparkett
Plane
Umbau Zweifamilienhaus im Fricktal
Umbau Zweifamilienhaus im Fricktal
Alter des Gebäudes: ca. > 150 Jahre
Detailbeschrieb
Vorgehen
Wir trafen ein Projekt an, welches bezüglich der Altbau-Substanz erheblich verändert werden sollte. So sollte die Fassade zum Garten vollständig zugunsten einer Wohnraumerweiterung geöffnet werden. Das Dach wurde vor einigen Jahren komplett saniert. Die Decke über OG verstärkt sollte belassen werden, die Decke über EG, eine historische Balkendecke mit Naturgips aus der Region und Fichtestaken zeigte sich für den Umbau als zu wenig solid und wurde ausgebaut. Die zwei Gewölbekeller bleiben erhalten. Ein Gewölbekeller wird neu zum Technikraum. Für die Erweiterung
des Wohnraums im EG und einer Terrasse zum Garten wird ein neuer Keller angebaut, der eine interne Treppenverbindung erhält in den Mittelbereich und zur Wohnung, wie auch zum bestehenden Nachbarhausteil der Eltern.
Umbauvorhaben
Alter Wohnhausteil wird neu eine 3-geschossige Familienwohnung. Der ehemalige Mittelbereich (Tenn) wird zur 3-geschossigen Einliegerwohnung.Von einer ursprünglichen Auskernung mit Massiveinbau Betondecken/-wände und Backstein Trenn-wänden, wurde der Umbau der Wohnbereiche in eine Holzbau-«Trockenbauweise» umkonzipiert. Dadurch wird die Baufeuchte nach der relativ kurzen Bauzeit kein Thema, was die Behaglichkeitdes sofortigen Bewohnens nach Fertigstellung massgeblich garantiert. Der Umbau wird bau- und elektrobiologisch realisiert werden.
Bauzeit: Februar Abbruch + Aushub, Umbau März bis Oktober 2018
Plane
Öko-Umbau/Anbau, Dorfbauernhaus in Therwil
Umbau Bauernhaus im Dorf (Baujahr 17. - 18. Jhdt.) mit An- und Aufbauten
Umbau- und Neubauvolumen nach SIA 1'250 m3
Beheizte Wohngeschossfläche brutto 230 m2
Bauzeit August 2002 - September 2003
Detailbeschrieb
Geschichtliches und Angaben zur Konstruktion
- Das zweigeschossige, nicht unterkellerte historische Gebäude stammt aus dem 17./18. Jahrhundert.Viele z. T. erhebliche Veränderungen von früheren Generationen traten bei der Renovation zu Tage und forderten eine vielseitige Anpassungsfähigkeit heraus.
- Die originale Grundstruktur sollte beim Umbau weitgehend erhalten bleiben. So blieben die Bruchstein-Aussenwände und die Decke über EG sowie die tragenden Trennwände im EG und OG erhalten. Leichtbautrennwände wurden herausgenommen. Interessantes zeigte sich bei der Giebelwand zum Wirtschaftsgebäude: eine frühere Generation verschob die Giebelwand ab OG 80 cm Richtung Wirtschaftsgebäude, um in den oberen Stock-werken mehr Platz zu gewinnen. Diese lagerte auf den Stallbalken. Vielleicht war die ursprüngliche Dachkonstruktion so stark reparaturbedürftig, dass sich eine Erweiterung anbot. Diese Veränderungpassierte vor 1900. Die Korrektur dieser statisch unglücklichen Massnahme wurde beim Umbau im 2003 so angegangen,indem der "fliegende" obere Giebel mit einer Pfostenkonstruktion im EG abgefangen wurde. Die damit erhaltene Erweiterung des EG's war eine willkommene Fügung.
- Das Wohnhausdach mit Mansarden und zwei kleinen Gauben musste mit der Decke über OG vollständig ersetzt werden. Dies war besonders für die Decke über OG schade, denn es handelte sich um eine über 100 Jahre alte, gestrichene Kassettendecke, welche vollständig verwurmt war.
- Der Anbau aus dem Jahre 1953 mit Bad und Waschküche zum Garten und mit einer Terrasse im OG fielen zusammen mit dem Naturkeller und Schweinestall sowie dem ganzen hinteren Teil des Wirtschaftsgebäudes (ehem. Boutique) dem Abbruch wegen mangelnder Qualität zum Opfer.
Neubauteile
- Diese Massnahmen boten Platz für einen EG-erweiternden Anbau zum Garten hin mit Bad/WC in Holzbauweise. Ein wichtiger und schöner Raum, welcher die EG-Wohnung erheblich aufwertet. Im OG darüber entstand gleichzeitig eine wertvolle Terrasse. Auch ergab die Öffnung der Schüre nach hinten eine räumliche Verbesserung und Option für einen späteren Ausbau.
- Das ab 2003 im EG untergebrachte Architekturbüro kann später mit einfachen Mittelnin eine alters- und behindertengerechte Wohnung umfunktioniert werden.
- Der ehemalige Stall wurde zum internen, unbeheizten Treppenhaus (Aufgang zur Wohnung OG)mit angehängtem Haustechnikraum.
- Die Aussenwand des Wohnhauses zum Wirtschaftsgebäude ist vollflächig thermisch isoliertund beinhaltet alle Installations-Steigzonen.
- Das neu ausgeführte Dachgeschoss in Holzelementbauweise erhielt neu eine raumhohe Öffnungzum Garten hin. Strassenseitig wurden drei Gauben in die Dachschräge gesetzt, um den Baukörper dem geforderten Ortsbild gerecht zu werden.
- Die Giebelwand zum Gässli wurde nicht in Bruchstein weiter aufgemauert, sondern in 39 cm dicken POROTON-Hochdämmbacksteinen. Ein langes Fensterband zeigt sich als ein neues Element unübersehbar in der traditionellen Fassade.
- Über dem neuen DG wurde ein unbeheizter Dachraum gelegt, welcher im Sommer/Winter raumklimatisch viel zum Komfort der Schlafräume beiträgt. Die Dämmung des Daches ist aus Zellulose und Holzweichfaser 25 cm dick.
- Der offene Holz-Laubenanbau nach Osten über drei Etagen bietet viel gedeckten Aussenraum und willkommenen Wetterschutz.
- Alle Aussenwände wurden raumseitig mit einer mit 8 cm-Naturzellulose isolierten Vorwand- konstruktion und 15 mm Fermacellplatten beplankt. In dieser Schicht sind auch die Wand heizelemente von Thermotec integriert.
- Die Gas-Zentralheizung ist im Haustechnikraum untergebracht.
- Die Elektroinstallation wurde elektrobiologisch konzipiert.
Lehmbau im Speziellen
- Die Ausfachungen von neuen und teilweise alten Fachwerken wurden in allen Geschossen in Schweizer Lehmsteinen von ZZ-Wancor (ex-Ziegelei Keller) ausgeführt. Die Produktion dieser hervorragenden Leichtlehmsteine mit Chinaschilfanteil (1'200 kg/m3) wurde 2001 aus wirtschaftlichen Gründen eingestellt. Es wurden die letzten CH-Lagerbestände in diesem Haus verbaut.
- Alle Wände wurden mit farbigen Lehmputzen versehen, welche auf der Baustelle hergestellt wurden.
- Als Besonderheit gelten die 65 m2 Stampflehmboden in den drei heute als Büro genutzten EG-Räumen. Die Bauherrschaft, mit 2 Helfern der IG Lehm und Martin Rauch als Fachmann, bauten 9 m3 Stampflehmmischung aus Schlins/Vorarlberg ein. Dieser Stampflehmboden lagert auf einem 40 cm-Rundkieskoffer und einem 15 cm dicken Isolier-Unterlagsboden aus Trasszement und rezykliertem Korkgranulat.
Anderes
- Das gartenseitige Dachwasser versickert via 10 m3 Teich in ein 80 m3 Trockenbiotop aus Gelbkies. Das strassenseitig anfallende Dachwasser versickert in einem Sickerschacht, der mit Kies eingekoffert wurde.
- Aus den Bruchsteinen des ehemaligen Naturkellers entstand eine eigenwillig gestaltete Gartentrockenmauer.
Plane
Öko-Umbau, Jurahaus in Epiquerez
Umbau und Erweiterung Jurahaus in Holz und Lehm
Wohnfläche alt: 142 m2
Wohnfläche neu: 212 m2
Bauzeit: Herbst 1995 bis Frühling 1997
Detailbeschrieb
Konstruktion Voraussetzungen
- Bruchsteinmauerwerk aus typischen schmalen Jurasteinen, vermauert mit Lehm und Kalkmörtel
- Balkenböden im Wohnteil über OG, renovationsbedürftig
- Bretterboden über Stallungen und grosse Scheune, renovationsbedürftig
Baudaten
- Erweiterung des Wohnhauses in die neue Scheune, Aussenwand gegen Scheunemit PORITH-Backsteinen 36.5 cm gemauert.
- Neue Decke in Holzbalkenkonstruktion, mit Einschiebeböden, teilweise mit Lehmschüttung,teilweise mit ISOFLOC gedämmt, teilweise mit Fermacell Schüttung zum ausheben
- Die Bruchsteinwände wurden innen mit einer ca. 5-8 cm dicken aufgespritzt Perlit/Lehm-mischung gedämmt. Ausführung: Rolf Fischler Lehmbau
- Der Lehm wurde aus einem nachbarlichen Aushub gewonnen und örtlich aufbereitet.
- Die mit Ortslehm verputzten Wände wurden von der Bauherrin zusammen mit einerbefreundeten Künstlerin gestaltet.
- Die Innentrennwände sind teils aus Holzständer gebaut, mit Fermacellplatten verkleidet und mit Isofloc isoliert, teils mit Backsteinen gemauert. Alle Wände mit Lehmputzen.
- Die Scheunenkonstruktion wurde stabilisiert und das Dach mit neuen Ziegeln eingedeckt. Alte, guterhaltene Pfosten wurden erhalten und im Wohnhaus integriert.
- Aus der Bauteilbörse wurden Lavabos, Duschetassen, Fenster, Türen und Küche verwendet.
- Wandplattenbeläge in der Küche wurden in Lehm verlegt.
- Die Kanalisation wurde gänzlich erneuert, sowie die Sanitär-und Elektro-Installationen.
- Die Installationen wurden so verlegt, dass ein künftiger Dachstock-Ausbau möglich ist
Plane
Umbau Aufstockung in Sulz AG
Umbau Aufstockung in Sulz AG
• Architektengemeinschaft: Projekt Atelier Schmidt, Trun GR, Realisierung DH
• Abbau der Gross-PV-Anlage und der Dachkonstruktion des bestehenden Scheunenbaus
• Aufstockung neues Geschoss als EFH in Elementbauweise
• Wiederaufbau der PV-Anlage
• Neue Hausanschlüsse Strom + Wasser + TEL-TV
• Bauzeit: September 2022 bis April 2023
Umbau Aufstockung in Sulz AG
• Baufamilie Andreas und Natascha
• Baufamilie Martin und Isabel
• Die Spechte sagen "Grüezi Schwiiz"
Detailbeschrieb
Konstruktion
Das bestehende Dach des Scheunenbaus wurde zur Wiederverwendung an anderem Ort zurückgebaut. Vorbereitend wurde das bestehende untere Holzfachwerk partiell verstärkt.Der neue Aufbau in Holzelementbauweise mit Baustrohdämmung und lokal hergestellten inneren Trennwänden wurde in Partnerschaft des örtlichen Holzbauers mit dem Hersteller in Freiburg i.Br. erfolgreich und kostenoptimiert realisiert.
Die innen im Rohbau sichtbare Strohdämmung wird mit 3 cm Lehmputz versehen, die Fassade aussen ist in verputzten Holzweichfaserplatten. Die inneren Fermacell Oberflächen werden mit Lehmfeinputz versehen. Der Innenausbau wird einfach gewählt.Die meisten Unternehmer kommen aus der nahen Region.
Beteiligte Firmen
- Hausanschlüsse Aarvia, Würenlingen
- Gerüstbau Obrist, Lenzburg
- Baumeister Hossli, Bözen
- Zimmerei Grünspecht, Freiburg i.Br. + Kalt Holzbau Sulz
- Treppen + Veranda Kalt Holzbau, Sulz
- Spenglerei + Metallbau Weiss, Sulz
- Fenster Hinze, Tecknau
- Fassadenverputz René Bär, Zofingen
- Lehmputz René Bär Zofingen + Georg Paul, Laufen
- Sanitär Koch, Wölflinswil
- Heizung Franz Rebmann, Kaisten
- Elektriker Etavis, Baden
- Schreinerarbeiten + Küche Weiss, Sulz
- Plattenleger Alfons Schmid, Sisseln
- Parkettarbeiten (bauseits)
- Spezialverglasung EdelSwiss, Laufen
- Sonnenschutz Kato Storen, Frick
- Fotovoltaik EnPro+MontaPro, Brugg
Plane
Aufstockung Reihen-Einfamilienhaus in Witterswil
Aufstockung Reihen-Einfamilienhaus in Witterswil
Aufstockung mit Mansardendach anstelle Satteldach
Gebäudehüllensanierung
Erneuerung Nasszellen
Bauzeit: September bis Dezember 2022
Detailbeschrieb
Konstruktion
Das bestehende Dach und die Giebeldreiecke wurden zurückgebaut, der dünne Betonboden über OG wurde mit Zusatzarmierung überbetoniert, darauf wurde das Mansardendach in Element bauweise aufgebaut. Zwei feine Lukarnen wurden integriert. Zwei grosszügigen Räume und ein Bad fanden darin Platz, das Treppenhaus wurde ins DG hochgeführt.Als Kopfbau wurden zwei Fenster nach Westen möglich. Die ursprüngliche PV-Anlage wurde abgebaut und findet auf dem neuen Dach um drei Elemente erweitert (anstelle der Thermosolar Paneele) wieder ihren Platz. Dacheindeckung mit feinwelligem Eternit farblich dem Bestand angepasst. Spenglerarbeit in Kupfer. Die bestehende Sitzplatzüberdachung wurde wegen der Fassadendämmung abgebaut und in gleicher Art wieder neu aufgebaut.
Beteiligte Firmen
- Gerüstbau Lovecchio, Basel
- Baumeister Edmund Jourdan, Muttenz
- Jäggi Holzbau, Biel-Benken
- Thüring Spenglerei, Ettingen
- Fassadenbau Spirig Fassaden, Oberwil
- Schwald Fenster, Basel
- Treppenbau Felma, Lyss
- Sanitär Moret & Brodmann, Hofstetten
- Elektriker Kolb, Ettingen
- Gipser + Lehmbau Brunoni & Leu, Oberwil
- Plattenleger Wetzel, Oberwil
- Metallbau Gebrüder Degen, Oberwil
- Parkett Heierli, Buckten
- Sonnenschutz Treudler-Laros, Pratteln
- Nachbarkamin Müller Haustechnik, Bärschwil
- Fotovoltaik Erweiterung Stich Solar, Kleinlützel
Plane
Energiesanierung Einfamilienhaus in Therwil
Energiesanierung Einfamilienhaus in Therwil
Gebäudehüllensanierung (Fenster, Fassade + Dach), Sonnenschutz
Massvoller innerer Umbau, neue Küche, Wanddurchbruch Wohnzimmer zu Küche,
Bodenbeläge, Cheminée-Ofen, Gipserarbeiten
Luft/Wasser-Wärmepumpe ersetzt Öl-Heizung + neue elektrische Installationen
PV-Anlage auf Dach
Malerarbeiten aussen und innen
Bauzeit: August 2022 bis Februar 2023 (lange Bauzeit wegen diversen Lieferproblemen)
Detailbeschrieb
Isolation Dach
Zwischen-Sparrendämmung mit Naturfaserplatten aus Hanf, 180 mm
Auf-Sparrendämmung Holzfaserplatten, 120 mm
Isolation Fassade
Aussenwärmedämmung mit Steinwolle, 200 mm
Eingefärbter mineralischer Verputz
Fenster neu
Holz-Metall 3 IV
Beteiligte Firmen
- Asbestsanierung, Dekonta AG, Reinach
- Baumeister Paul Gschwind, Therwil
- Elektriker Pevo, Arlesheim
- Fassade Spirig Fassaden, Oberwil
- Fenster Hinze, Tecknau
- Gerüstbau Lovecchio, Basel / Dapar, Oberwil
- Jäggi Holzbau, Biel-Benken
- Kamin + Cheminée Ofen Füürparadies, Pratteln
- Kanalsanierung, SWISSKanaltechnik AG, Reinach
- Kittfugen, Sanox AG, Liestal
- Küche U. Baumann, Oberwil
- Malerarbeiten, Beat Blatter GmbH, Therwil
- Parkett Castioni, Ettingen
- Photovoltaik Pikey Soley, Böckten
- Sanitär + Heizung Moret & Brodmann, Hofstetten
- Sonnenschutz Treudler-Laros, Pratteln
- Spengler Erzer, Witterswil
- Umgebung Walter Gutzwiller, Therwil
Plane
Öko-Atelierhaus in Therwil
Neubau Atelier im Passivhaus-Standard ohne Komfortlüftung
Gebäudevolumen beheizt nach SIA: 240 m3 / gedeckter Aussenraum: 70 m3
Beheizte Brutto-Geschossfläche: 44 m2
Bauzeit: Juli bis November 2009
Detailbeschrieb
Beschrieb zur Ausführung
- Atelierhaus auf Einzel- und Streifenfundamenten, unterlüftet,
- Ausführung: BG Urs Kilcher, Dornach
- Grosser überdachter Aussenraum als Sitzplatz und Holzlager
- Konstruktion: Holzbauelementen, Dämmstandard Passivhaus,
- Ausführung: A-Z Holzbau, Liestal
- Holzbauelemente innen: 4.5 cm starke Lehmputzschicht als Speichermasse und klima-regulierendes Element, Putzträger: Schilfrohrmatten, Gebäudedämmung Borat freie Zellulose
- Elektroinstallationen und Wandheizregister: in Lehmschicht eingebettet
- Fassade: Offene Rhomboid Schalung (Weisstanne lokal), Farbe: "Faluröd-Slamfärg"
- Dachflächen: extensiv begrünt
- Lehmgrundputz: Ortslehm mit Laufener Kalksand, Lehm Deckputz: Ortslehm, feiner Kalksand, Ausführung: Lehmbaukollektiv Laufen
- Bodenbelag: vorgeölte Massiveichenriemen (D) auf Blindboden geschraubt
- Deckenuntersichten in 3-Schichtplatten unbehandelt
- Beheizung: angehängt an bestehende Erdsonden-WP Wohnhaus
- Holz-Metallfenster "Fenlife" 3-fach verglast (U-Wert 0.7), Ausführung: Steiner-Fenster, Liesberg
- Elektroinstallationen elektrobiologisch, Ausführung: Gutjahr+Hartmann, Therwil
- Küche IKEA
- Schmutzwasser: Anschluss an bestehende Hauskanalisation, Regenwasser: in Versickerungskoffer
Eigenleistung Bauherrschaft
Anstrich Holzfassade, Montage Schilfrohrmatten als Putzträger,
Aufbereitung Ortslehm, Verlegen Riemenboden, Umgebungsarbeiten
Plane
Öko-Atelierhaus in Wenslingen
Neubau Ateliers für eine Basler Künstlerin
Gebäudevolumen beheizt nach SIA: 285 m3
Beheizte Nettofläche: 45 m2
Bauzeit: August bis Dezember 2011
Detailbeschrieb
Eingeschossiger Neubau mit Arbeitsraum für Künstlerin, Bibliotheksraum und Nasszelle
Vorfabrizierter Holzbau Wandelemente innenseitig Holz-3-Schichtplatten ausgesteift Dämmung: Holzweichfaserplatten Wand 23.5 cm, Bodenelemente 26 cm, Dachelement 28 cm, Ausführung: Holz-Elementbau: Hürzeler Holzbau AG, Magden
1G-Neubau auf unterlüftetem Streifenfundament aus Zementsteinen,
Ausführung Aushub und Fundament: örtlicher Baumeister
Gebäudehülle
Fassade verkleidet Vertikalschalung (vorvergraute Jura-Lärche)
Dach: Welleternit fein
Spenglerarbeiten: Kupferblech
Aussensitzplatz: unbehandelte CH-Lärche
Pergola-Konstruktion in Stahl feuerverzinkt, Spanndrähte in Chromstahl
Holz-Metallfenster Hunziker Schöftland 3-IV 0.6
Innenausbau
Lehmstein (HAGA) -Trennwand Arbeits- und Bibliotheksraum
Ausführung: Marc Hübner, Dornach, Verputz in lokalem Lehmputz
Übrige Holzoberflächen Wände, Dachuntersichten Einbauschränke sind deckend gestrichen.
Ausnahme Nasszelle (Keramikplatten) Atelierboden in geölten CH-Tannenriemen,
Arbeitsraum zusätzlich Linoleum als Schutzbelag
Anschlussleitungen
Wasser, Strom und Heizung via spezielles Fernleitungsrohr
vom bestehenden Wohnhaus ins Atelier geführt
Einleitung Fäkalwasser in bestehende Hauskanalisation
und Regenwasser Einleitung in bestehenden Teich
Plane
Anbau an Einfamilienhaus in Therwil BL
Anbau an Einfamilienhaus in Therwil
Anbau 2-G in Holzbauweise (Windfang mit Treppe ins OG) unbeheizt
Baugesuch Projekt H.R. Bühler Arch. Bottmingen
Detailbearbeitung und Realisierung durch unser Büro
Anbau Volumen nach SIA neu ca. 60 m3 / durch Anbau betroffener Raum ca. 100 m3
Bauzeit: August bis Oktober 2020
Detailbeschrieb
Konstruktion Anbau
- Die Bauherrschaft legte Wert darauf, dieses Kleinod platzoptimiert zu bauen und wählte die Materialien nach baubiologisch-ökologischen Kriterien.
- Fundation Betonarbeiten und Anpassung konventionell/Sanierung Kanalisation, Ausführung: BG Edm. Jourdan, 4132 Muttenz
- Neue Konstruktion Anbau: Holzbau an Ort mit Anpassungen an bestehendes Dach und krumme Aussenwände Fachwerk-Holzbauwände mit Holzweichfaser Dämmung, Spenglerarbeit Dachdecker, Fassade in geschlossener Schalung lokal, Ausführung: NM-Holzbau, 4425 Titterten
- Falu Vapen Schlammfarbe Farbton NCS S-6010-Y10R
- Dachfläche Anbau: Ziegel mit Holzweichfaser Unterdach, Zwischensparren-Dämmung
- Lehm- und Verputzarbeiten: Lehmdeckputz Lehmwerk.ch innen auf ehemaligen Aussenwänden, Sumpfkalkputz, Ausführung: Georg Paul + Rainer Hettenbach
- Bodenbelag: geölte EG Eicheklötzli + OG Eichenriemen Fertigparkett,
- Ausführung: Reto Heierli, 4446 Buckten
- Holzbau Wände + Decke innen mit Tanne DS-Paneelen mit Mineralfarbe weiss gestrichen
- Holz-Metallfenster (U-Wert 0,6), Ausführung: Schwald, Basel
- Schreinerarbeiten inkl. OG Eingangstüre, Ausführung: Marti AG, 4616 Kappel
- Windfang-Eingangstüre Wohnung EG, Ausführung: MEVO Metallbau, 4153 Reinach
- Eigenleistung Bauherrschaft: Anstrich Holzfassade, Malerei
- Malerei innen + aussen Ausführung: Beat Blatter, 4106 Therwil
- Vorplatz Pflästerung Ausführung BG Edm. Jourdan, 4132 Muttenz
Plane
Öko-Anbau an Einfamilienhaus in Oberwil
Umbau bestehendes EFH mit Anbau in Holzkonstruktion
Volumen Anbau: 118 m3
Bauzeit: September 2003 - Januar 2004
Detailbeschrieb
Konstruktion Anbau
- Zimmermannskonstruktion vor Ort, Ausführung: Risi Zimmerei, Allschwil Wärmedämmung mit Borat freien Zelluloseflocken Fassade unbehandelte offene CH-Lärchenschalung Innenwände Fermacell mit hellen Lehmputzen, Ausführung: Lehmbaukollektiv Laufen
- Erweiterung Wärmeverteilung: Niedertemperatur-Wandheizelemente unter Lehmputz, gekoppelt an bestehende Gasheizung, ergänzt mit Schwedenofen
- Sonnenschutz aus Holz-Schiebeläden vor Holz-Hebeschiebetüren
- Flachdach als Terrasse ausgebildet mit CH-Douglasien-Holzrost
- Bodenbeläge Anbau: innen CH-Eichenriemen geölt, aussen CH-Douglasien-Holzrost
- Malerarbeiten innen mit Naturfarben
Weitere Umbauarbeiten
- Öffnung Küche zu Wohnraum und Einbau separates WC mit Dusche
- Neue Küche, Ausführung: Wohngeist Basel
Plane
Öko-Anbau an Einfamilienhaus in Oberwil
Anbau in Holz mit Lehmwickeldecke
Volumen Anbau nach SIA: 220 m3
Wohnfläche Anbau: 30 m2
Fläche neue Terrasse: 17.5 m2
Bauzeit: Juni bis September 2000 (3.5 Monate)
Detailbeschrieb
Konstruktion Anbau
- Holzständerkonstruktion mit unbehandelter CH-Lärchenholzfassade, Ausführung: Risi Zimmerei, Allschwil
- Wärmedämmung Boden und Aussenwände: Borat behandelte Schafwolle Deckenkonstruktion: Zellulosedämmung, Flachdach begrünt
- Lehm als Speichermasse: Lehmsteine unter Holzriemenboden und moderne Interpretation Lehmwickeldecke (Ortslehm, Strohhäcksel, Flachsschäben)
- Innenwände und Decke: in Ortslehm mit Kalksand Verputz und Gestaltung: Bauherrschaft mit Lehmbaukollektiv
- Die Holzfenster IV 1.0 gestrichen mit ökologischen Farben
- Wandheizelemente (angehängt an bestehenden Gas-Zentralheizung) in Lehmputz eingebettet, Schwedenofen für Übergangszeit
- Terrasse aus lokalemDouglasien-Konstruktionsholz und CH-Lärchenboden zwischen bestehendem Haus und neuem Anbau, Geländer und Pergola verzinkte Stahlkonstruktion
Plane
Anbau, Bilderlager in Oberwil
Neubau Anbau in Erdreich als ausgebauter Lagerraum
Gebäudevolumen beheizt nach SIA: 195 m3
Beheizte Nettofläche: 39 m2
Bauzeit: Oktober 1995 bis April 1996
Detailbeschrieb
Eingeschossiger Neubau auf Kellerniveau, gedämmt, Ausbau mit gepressten Lehmsteinen.Der Anbau sollte nach Aussen nur wenig in Erscheinung treten, das Flachdach als Magerwiese begrünt werden.
Konventionell erstellter Beton-Massivbau mit Fensteröffnungen über Gartenniveau,
Ausführung: Seiler Bau AG, Oberwil Abdichtung Dach mit Polymerbitumen, wurzelfest, Ausführung Hoffmann & Stetter, Basel Flachdach mit 25-30 cm Wandkies und Begrünung, Ausführung: Grünpeter Basel Dämmung innen mit 10 cm Schaumglas als Dampfsperre, Boden Wände Decke, Ausführung: Karl Hasler, Oberwil.
Lehmbau: 8 m3 Speichermasse mit gepressten 12 cm Lehmsteinen (St.Pierre Rupperswil AG) Lehmmörtel und Lehmputz aus Ortslehm (Aushub) mit Laufener Kalksand, Ausführung: Rolf Fischler Lehm- und Ökobau, Möhlin.Heizung Raumtemperierung mit Radiator, an Zentralheizung angehängt,
Ausführung: Gasser & Co., Oberwil Fenster: Holz-Metall 2-IV 1.2 Ausführung: Hasler Fensterfabrik, Oberwil
Innenausbau
Die dreiseitig mit einer vorgemauerten Lehmstein-Innenschale versehenen Wände sind eingesetzt, um im Lagerraum ein ausgeglichenes Luftfeuchteklima von 50-60% zu erreichen.
Der Gebrauch der letzten 20 Jahre zeigte, dass sich der gewählte Weg 100% bewährt hat.Der Boden ist in geölten Tanneriemen.
In eigener Sache
Dieser Anbau war für unser Büro der erste Bau mit Lehmbaustoffen. In der Folge liess uns das Thema nicht mehr los. Es war die eigentliche Initialzündung für unser künftiges Wirken.
Plane
Einfamilienhaus in Läufelfingen
Anbau und Umbau Einfamilienhaus in Läufelfingen
W1 Einfamilienhaus (Teil eines Doppel-EFH) an Hanglage, Massivbauweise
Baujahr EFH 1962 / Garage-Anbau SG 1973
Gebäudevolumen nach SIA bestehend ca. 640 m3 / Anbau + Terrasse neu ca. 190 m3
Brutto-Geschossfläche beheizt: ca. 150 m2
Bauzeit: Abbruch November 2016, Vollendung Ende April 2017
Detailbeschrieb
Anbau Passivhaus Dämmstandard + Umbau Sockelgeschoss
Konstruktion Anbau (Passivhaus Dämmstandard) und Umbau SG + EG
- Die Bauherrschaft legte Wert darauf, mit Unternehmern aus der nahen Umgebung zusammen zu arbeiten, was sich mit unserer ökologischen Philosophie sehr gut traf.
- Alle Baumaterialien wurden nach Möglichkeit baubiologisch/-ökologisch gewählt.
- Neue Konstruktion Anbau: Holzbauelemente, Dämmstandard Passivhaus, Terrasse Holz, Ausführung: B. Erne, Läufelfingen
- Holzbauelemente innen: 6 cm stark in Lehmplatten klimaregulierende Speichermasse, Gebäudedämmung Holzweichfaser
- Elektroinstallationen und Heizverteilung Anbau in Lehmschicht geführt
- Deckenheizung Thermotec auf Holzrost im Anbau, Wandheizung Thermotec im SG, Ergänzung zu bestehenden Heizkörpern in allen bestehenden Räumen, Anbau Kachelofen Einbau als Ergänzung für die Übergangszeit, Ausführung Wand- und Deckenheizung, Radiatoren: Heinz Probst, Frenkendorf, Ausführung Kachelofen: Urs Grieder, Gelterkinden
- Fassade: geschlossene N+K-Schalung (Weisstanne lokal), Farbe: hellgrün Falu Vapen
- Dachfläche Anbau: extensiv begrünt auf Schwarzdach, Ausführung: Roth Dach, Gunzgen
- Lehmarbeiten: Lehmplatten 15 mm und Lehmputze, Lieferant: Lehmwerk.ch, Dornach,
- Ausführung: René Bär, Zofingen
- Bodenbelag: geölte Eichenriemen Fertigparkett, Ausführung: Reto Heierli, Buckten
- Deckenuntersichten SG Gips gestrichen, Anbau Decke Fermacell HAGA Sumpfkalkglätte, Ausführung René Bär, Zofingen
- Holz-Metallfenster (U-Wert 0.6), Ausführung: Roos, Thürnen
- Schreinerarbeiten, div. Türen/Schiebetüren, div. Einbauten, Ausführung: Roos, Thürnen
- Elektroinstallationen: teil-elektrobiologische Ausführung: Dunkel&Schürch, Bubendorf
- Küche in Kunstharz belegt Platten, Arbeitsfläche Granit, Ausführung: Werkstätte Arxhof
- Grosser überdeckter Aussenraum im SG unter Terrasse EG, Stahlkonstruktion, Geländer,
- Ausführung: MB Metallbau, Tecknau
- Dachwasser Süd + West: Anschluss an 5000 l-Regenwassertank zur Gartenbewässerung
- Eigenleistung Bauherrschaft: teilweise Rückbau, Anstrich Holzfassade, Malerei, Umgebungsarbeiten
Plane
Umgestaltung des Kirchenraums, Ref. Kirche Therwil
Sanierung + Umgestaltung Kirchenraum Ref. Kirche Therwil BL
Volumen Kirchenraum: 800 m3, Bauzeit: März bis August 2016
Detailbeschrieb
Umgestaltung Kirchenraum und raumklimatische Verbesserungen mittels Energie-Sanierung
Die Kirche wurde 1967 als Provisorium erstellt. Damals hatte das vorwiegend katholische Therwil ca. 3‘500 Einwohner. Mit der gestiegenen Zahl der Therwiler Einwohnerzahl (2014 > 10‘000) stieg auch die Zahl der reformierten Kirchenmitglieder stark an. Die Ökumene hat sich ebenfalls sehr gut entwickelt und die Kirche wird multifunktionaler benutzt.
1996 wurde das Dach und die Seitenräume des "Provisoriums" energetisch stark verbessertund der Eingang zum Hof neu erstellt. 1999 erhielt die Kirche eine neue stattlich grosse Orgel,während dem die kleine alte Orgel nach Rumänien verschenkt wurde.
Nach einigen Jahren wurden die Klagen der Organisten immer zahlreicher, dass die neue Orgel unter dem stark schwankenden Raumklima leide. Fortan wurde der ursprüngliche HEUGA-
Naturhaarteppich regelmässig mit der Giesskanne gespritzt. Jahre später wurde zusätzlich ein Befeuchtungsgerät eingebaut, weil besonders im Winter dramatisch trockene Werte die Orgel leiden liess.
Im Rahmen der kirchlichen Bauten-Inventarisierung und Zeitpläne zur Sanierung, wurde von der
Kirchenleitung festgelegt, die Mängel der "provisorischen" Therwiler Kirche als Priorität anzugehen.
Unser Büro wurde beauftragt, das Szenario zu erarbeiten, um den Kirchenraum klimatisch und gestalterisch aufzuwerten, so, dass der Provisoriums-Charakter nach 50 "Betriebs-Jahren" sanft verändert und aufgefrischt werde.
Es galt vorab, die "Undichtstellen" der 1996-er Sanierung zu beheben und die bestehende 5 cm Styropor Bodendämmung durch 28 cm dicke ökologische und hochwertige Dämmung zu ersetzen. Im Zug der Sanierung wurde der Boden, als eine der letzten Arbeiten, in geräuchtem geölten Eiche-Klötzliparkett ausgeführt.
Die Lehm-Vorsatzschalen an den beiden Giebeln sind Klima- und Akustik beeinflussende Bauteile und liessen den Provisoriums-Charakter des Kirchenraumes auf einen Schlag verschwinden.
Die je 45 m2 grossen Flächen wurden in Lehmstein-Stapeltechnik aus Dornacher Lehmsteinen als 14 cm dicke Vorwandschalen erstellt. Die mit Ortslehm-Grundputz verputzten Flächen erhielten einen 2-schichtigen Lehmdeckputz, der 2. Auftrag wurde nach eigener Rezeptur in Lehm-Spachteltechnik ausgeführt. Das hervorragende Raumklima konnte nach kurzer Zeit konstatiert werden.
Der geschichtsträchtige Wandbehang von 1967 wurde von der damals zur Gestaltung
und Realisierung eingeladenen Frau Lotti (Hernandez-) Moor sanft gereinigt und repariert. Durch die "Einbettung" in die Lehmfläche erstrahlt er besser denn je!
Die Seitenwände in Holztäfer wurden entgegen der ursprünglichen Absicht belassen, aber vom Maler zusammen mit der ganzen Dachfläche lediglich gewaschen und aufgehellt. Die Türen und der neue Wandschrank, zusammen mit den Holzzapfen der über 300 Einblas-
löcher der Dachflächen wurden mit einer Tee-Kaffee Beize behandelt und so dem bestehenden Holz Ton angeglichen. Die Seitenwände, die Haupttüren und die neuen Naturholzflächen wurden zusätzlich mit Bienenwachs geschützt.
Die Dachfensterbänder erhielten neu IV-Glas 1.0 und wurden abgedichtet, damit der Dämm-perimeter auch dort verbessert wurde. Die neuen transparenten Polykarbonat-Wellplatten sind viel lichtdurchlässiger und verschmutzen weniger, als die alten vergilbten und
verschmutzungsanfälligen Polyesterplatten.
Das neue Beleuchtungskonzept war ein eigentlicher Glücksfall. Die 10 neuen LED-Leuchten wurden in Therwil konzipiert und hergestellt. Deren Erscheinungsbild lehnt sich stark an die originalen schwarzen Beleuchtungskörper von 1967 an. Nur dass die heutigen Lampen wesentlich
besser den variablen Nutzungen des Kirchenraumes gerecht werden.
Die Raum-Lüftung wurde verbessert, indem endlich Klappen eine Dauerbelüftung verhindern.Die Einblasstutzen wurden neu gegen den Kanal hin abgedichtet, so dass die Luft auch im Kanal bleibt.
Die Beheizung des Kirchenraumes wurde gesamterneuert, weil zuvor die Heizkörper-Zuleitungen gänzlich unisoliert im kalten Luftraum unter dem Kirchenboden hingen. Neu wurden alle Verteil-Leitungen in die Boden-Dämmebene gelegt.
Die Elektrische Installation von 1967 verlief ähnlich abenteuerlich unter dem Kirchenboden wie die Heizverteilung. Sie wurde komplett neu erstellt.
Die Fluchttüre Parkplatzseite wurde aufgehoben. Als neuer Fluchtweg wurde die Türe zum Kindergarten umgebaut.
Die Übergabe der sanierten Kirche an die Kirchgemeinde fand anlässlich der feierlichen Einweihung am 11. September 2016 statt. Die zuvor für Chöre und Konzerte völlig ungenügende Raum-Akustik erhält nach der Sanierung ausschliessliches Lob. Allen voran von der Organistin, welche dies mit komplexen Klangläufen und langanhaltendem Schlussakkord immer wieder unter
Beweis stellt. Ihr Mann als Chorleiter doppelt mit gleichem Lob nach.
Unser Fazit: eine komplizierte Bauaufgabe erreichte das erhoffte, in diesem Ausmass aber unerwartete, hervorragende Ergebnis innerhalb der budgetierten Kosten von CHF 350'000.
Die Kirche darf stolz sein auf ihre sanierte schöne Kirche.
Wir danken der Kirchenleitung, der Baukommission und der ganzen Kirchgemeinde Oberwil-Therwil-Ettingen für das grosse Vertrauen und das Ziehen am gleichen Strick.
Plane
Zoo Basel, Haus Gamgoas, Neugestaltung Eingangsbereich
Zoo Basel, Haus Gamgoas, Neugestaltung Eingangsbereich
Auftraggeber: Zoo Basel
Planender Architekt: Peter Stiner, Architekt, Basel
Ausführung + Konzept Lehmbau: degen hettenbach & partner
Verantwortlicher Ausführung: Rainer Hettenbach
Partner Lehmbau: Georg Paul, Lehmbau, Laufen / Marc Hübner, Lehmwerk.ch, Dornach/Seewen SO
Team: 5 Praktikanten / 2 Männer, 3 Frauen
Partner Holzlieferung: Sägerei Albiez, Rheinfelden
Ausführung: Anfang November bis Anfang Dezember 2017
Detailbeschrieb
Der Zoo Basel trat mit dem planenden Architekten Peter Stiner an uns heran, um zu evaluieren,ob eine Eingangs-Neugestaltung in Stampflehm, in Anlehnung an das Etoscha Haus (Baujahr 2000)realisierbar sei. Lehm als Gestaltungsmittel wurde gewählt, weil der bisherige Eingangsbereich mit den gestalteten Metall-Wellenwänden korrodiert war und weil dieser Bereich immer stark Feuchtigkeits-beschlagene Verglasung aufwies. Die Neugestaltung sollte dieses Beschlagproblem auffangen helfen. Lehm ist dafür wirklich das Material, neben der weiteren positiven Eigenschaft, die Raumakustik dramatisch zu verbessern.
Nach eingehender Diskussion wurde schnell erkennbar, dass in einer gebauten Situation mit denrundum-Einschränkungen, Stampflehm sehr kostentreibend sein würde.
Wir schlugen vor, in Anlehnung an die Bauweise der Gamgoas-Trockensavanne in Namibia, eine traditionelle Lehmbautechnik zu wählen und diese gleich selber zu realisieren.
Bilder wurden zu Hilfe genommen und schnell war Einigkeit erreicht, diesen Weg zu planen. Es wurde im Herbst 2016 ein Angebot erstellt und die ungefähre Bauzeit definiert.
Im September erhielten wir dann den Zuschlag, die Arbeiten auszuführen und zwar so schnell wie möglich im November 2017. Mit der Übergabe des Auftrages verlangte der Zoo Basel, dass gebautes Muster und Vorschläge zu Handverputzen in Textur und Farbe geliefert werden.
Nachdem die Richtung aufgrund der Vorentscheide gegeben war, konnte auch der Auftrag zügig umgesetzt werden.
Ausführung: Anfang November wurde in Wahlen bei Laufen frischer und geeigneter Aushublehm für den Oberflächenputz parat gestellt. Der in Seewen bei Lehmwerk gelagerte Arlesheimer Aushub lehm bildete aber die Materialbasis für die Lehm-Flechtwand. In zwei grossen Bottichen wurde das Material eingesumpft, danach 2 Tage vor der Lieferung in den Zolli aufgerührt und ausgesiebt. Es wurde Kalk- und grauer Maurersand sowie 2 cm feines Strohhäcksel dem Lehm zugeben und
im Zwangsmischer fertig dosiert gemischt. Die Lehmmischung wurde in 60 Liter-Becken abgefüllt und am Tag 1 der Ausführung nach Basel transportiert.
Parallel wurden 50 m2 Lehmwerk-Lehmplatte 15 mm dick aus Arlesheimer Lehm parat gemacht und geliefert. Der Lehm-Oberflächenputz wurde speziell abgemischt, um das gewünschte Bild in Textur und Farbe zu erhalten. Die dünnere «ockerfarbige» Wand wurde 1:1 aus Wahlener Lehm belassen und bei der Lehm-Flechtwand wurde ca. 5 Vol.% stark färbendes rotes Lehmpulver aus dem Westerwald zugemischt, um die gewünschte rötliche Färbung zu erhalten. Dass das Ergebnis dem Termitenhügelrot sehr nahe kommt, ist eine glückliche Fügung, aber es war nicht überraschend.
Die Arbeiten konnten dank der Wärme im Gebäude und mit Hilfe von 3 Windmaschinen zügig trocknen. So wurden die Arbeiten in den versprochenen 4 Wochen realisiert, und der Eingangs bereich konnte mit einem 2-wöchigen Zeitpolster danach vor Weihnachten der Benutzung übergeben werden.
Das Ergebnis fand allseitig grosse Zustimmung.
Plane
Pavillon Totenwagen, Friedhof Therwil
Pavillon Totenwagen Friedhof Therwil BL
Volumen Pavillon: 40 m3
Fläche: 12 m2
Detailbeschrieb
Geschichtliches
Der Totenwagen von Therwil wurde im Jahr 1924 in Therwil hergestellt und war im Einsatz bis 1974. Danach stand er in verschiedenen Scheunen des Dorfes, bis er zuletzt aus Platzgründen im Werkhof
der Gemeinde landete.
- Das Therwiler-Dorfmuseum und der Verein-Alt-Therwil und viele Therwiler waren interessiert daran, den Totenwagen zu erhalten und an einem geeigneten Ort unterzubringen, welcher auch dem Publikum zugänglich ist.
- Nach einer erfolgreichen Petition an die Gemeinde und einer finanziellen Absicherung durch diverse Institutionen und Sponsoren, wurde entschieden, einen verglasten Pavillon zur Unter-bringung des Totenwagens zu errichten.
- Der Platz dafür wurde auf dem Friedhof, angehängt an das Abdankungsgebäude, gefunden.
- Unser Büro erhielt den Auftrag, die Planung für den Pavillon zu übernehmen. Im März wurde das Baugesuch eingereicht und die Baubewilligung erfolgte im Mai 2015.
- Spatenstich: 3. August 2015, Baubeginn: 4. August 2015
- Einweihung: 28. September 2015
Konstruktion
- Stahlkonstruktion, Pulverbeschichtung für Aussenanwendung
- Profilquerschnitte der Eckpfosten und Rahmen 80/80/4, Türrahmen aus 60/60/4
- 2 Seiten mit VSG-Glasfront, 1 Seite Servicetüre (2-flügliges Tor)
- Dachplatte aus 50 mm Verbundholz, Untersicht gestrichen
- Spenglerarbeiten in Titanzinkblech, Abdichtung Polymerbitumen, Ausspeier
Plane
Neubau Werkhof Remise in Therwil
Neubau Werkhof Remise Therwil BL
Die Remise (= Wirtschaftsgebäude für Fahrzeuge und Geräte)
wurde zur Unterbringung des Werkhof-Fahrzeugparks gebaut.
Das Erdgeschoss wird als Stellfläche für die Fahrzeuge benutzt.
Auf der längsseitig durchgehenden Galerie werden Geräte und Streusalz gelagert,
die mit einem Einträger-Brückenkran auf die Galerie gehoben werden können.
Bauzeit: Juni 2012 - Februar 2013
Detailbeschrieb
Konstruktion
- Die nordseitig offene Halle wurde hauptsächlich als Stahlkonstruktion realisiert.
- Holz wurde als Balkendecke über dem EG sowie als Pultdachsparren in BSH verwendet.
- Extensiv begrüntes Pultdach
- Rohe offene und vorvergraute "EcoGris" Fassadenschalung aus Glovelier JU
- Ausführung Fundamente und Bodenplatte: ROFRA AG
- Ausführung Stahl- und Holzbau: Stamm Bau AG / Preiswerk & Esser
- Das Regenwasser wird vom Haupt- und Vordach in einen Unterflur-Tank geleitet und zum Giessen der Gemeindeanlagen verwendet.
- Im Rahmen der Auszeichnung Energie-Stadt Therwil wurde auf Pultdach eine Photovoltaik-Grossanlage 30.6 kWp realisiert. Planung und Realisierung: ALTENO GmbH, Basel
Plane
Doppel-Einfamilienhaus, Umbau Obergeschoss, Witterswil
Umbau Obergeschoss in Doppel-Einfamilienhaus
Umbau OG mit Dachraum, Energiesanierung Dach und Fenster, Raumklima-verbessernde Massnahmen,
Schallschutz Massnahmen gegen Nachbar, Badumbau, Neugliederung der Zimmer, Balkon Vergrösserung
Umbau betroffener Raum 66 m2 / Volumen nach SIA 300 m3
Bauzeit: Januar bis März 2020
Detailbeschrieb
Die Bauherrschaft trat an uns heran, um das Doppel-Einfamilienhaus Baujahr 1984 im Obergeschossumfassend und möglichst ökologisch zu verändern. Ursprünglich war die Idee, das gartenseitige Schrägdach in eine Sitzplatzüberdachung mit Anbauterrasse und einem wenig in Erscheinung
tretenden Dachaufbau zonenkonform zu verändern, so dass das Südzimmer ein heller grosszügiger Raum würde. Die Nachbarschaft verweigerte aber ihre Zustimmung.
Situationen wie diese sind immer wieder eine Chance, alles grundsätzlich neu zu überdenken. Der Estrich wurde wieder zum ursprünglichen Raum, nachdem die räumlichen Veränderungen von 1996 rückgängig gemacht wurden. Ferner war die schlechte Schalldämmung der Brandmauer zum Nachbarn ein bedeutendes Thema. Der Beizug des Akustikers aus Langenbruck war wichtig,
um die Schwachstellen zu eliminieren.
Die Erweiterung des bestehenden kleinen Balkons war unumgänglich, da die gewünschte Terrasse nicht möglich wurde. Das Südzimmer wurde zum kompakten Schlafzimmer mit angegliedertem Ankleideraum. Das Ostzimmer wurde in einen Erholungsraum mit Sauna umfunktioniert. Das Bad wurde komplett neu organisiert und zum stimmigen Raum, alle Leitungen mussten auf die neuen Apparate abgestimmt werden. Der neue Unterlagsboden erhielt neu eine Flächenheizung. Das ganze Geschoss wurde mit einem fugenlosen Spachtelbelag versehen, welcher im Bad auch die Wände überzog. Alle Beleuchtung, Schalter und Dosen wurden neu konzipiert. Die Fenster der 2 Zimmer wurden mit Glas 3-IV 0.5 als Erste von später allen, erneuert. Das bestehende Luft-undichte Dach wurde im Zuge der Arbeiten von der ungenügenden 12 cm Glaswolldämmung befreit und neu mit Holzweichfaser Dämmung isoliert und luftdicht abgeklebt, gleich wie die Balkendecke über den Räumen. Damit ist das Doppel-Einfamilienhaus im Dachbereich mit > 30 cm Dämmung auf dem neuesten Dämmstandard. Das Bad erhielt ein vergrössertes Dachflächenfenster. Die Decken des OGs wurden mit lokal hergestellten Lehmplatten versehen und erhielten einen geschwämmelten Finish mit weissem Lehmfeinputz. Die Wände wurden mit hellgrauem Lehmfeinputz gespachtelt und geglättet.Die Baukosten beliefen sich auf CHF 1’000/m3 umbauten Raum.
Auftraggeber: private Bauherrschaft Witterswil
Planender Architekt: Rainer Hettenbach
Bauleitung + Lehmbau Konzept: Degen Hettenbach & Partner, Therwil
Beteiligte Unternehmer:
Jäggi Holzbau, Biel-Benken
Edmund Jourdan AG, Muttenz
Schwald Fenster, Basel
Treudler Laros Storenbau, Pratteln
Moret-Brodmann Sanitär Heizung, Hofstetten
KSL-Elektriker, Basel
Stöcklin & Frey, Biel-Benken
Schaublicht, Binningen
Jäggi Schreinerei, Arlesheim
Domino AG, Muttenz
Georg Paul Lehmbau, Laufen & Ass. Rainer Hettenbach
Marc Hübner Lehmwerk.ch, Dornach/Seewen SO
EDEL-SWISS Igor Stanic Glasarbeiten
Dollinger Spenglerei, Ettingen
Plane
Tanzstudio im Dreispitzareal, Basel
Einrichtung einer Tanzschule im UG
Nutzfläche Studio 1 + 2 = 200 m2 / Studio 3 = 100 m2
Bauzeit: Januar bis März 2015
Detailbeschrieb
Räumlichkeiten OSLOSTRASSE der CMS Christoph Merian Stiftung
- Im Untergeschoss der seit Jahren der Neunutzung bestimmten Gebäude im prosperierenden Dreispitz Areal, standen 300 m2 grosse und gut belüftete und belichtete trockene Lagerräume zum Ausbau zur Verfügung.
- Ganze Bodenfläche (bestehend mit 1% Gefälle!) in Kanadischem Ahorn geölt Unterlage: Bitumen-Dampfsperrfolie auf Zementboden, Hanffilzmatte 10 mm, Holzweichfaser 2 cm (Lage mit El.-UV), Spezial-Trittschallmatte, Parkett (BauHandWerk Ribbe, Winterthur)
- Betondecke mit abgehängter Schallschutzdecke: Heraklit Sichtplatten gefast 25 mm, Schalldämmernde Holzfasermatten, Luft (Hübag AG, Basel)
- Spiegelfronten raumbreit, Spiegel auf Holzplatten geklebt (EdelSwiss, Laufen)
- Vorhänge zum Abdecken der Spiegel und Garderobe, Fundusgestelle (Theatex Flüh)
- Die bestehende Elektro-Installation wurde auf die neuen Bedürfnisse angepasst. Mittels gezielt angepassten Lichtquellen wurde ein stimmiger Raum erreicht (Pevo GmbH, Arlesheim).
- Küche/Bar-Möbel im kleinen Tanzatelier (IKEA, Rolf Zimmermann Schreinerei)
- Raumtrennwand mit Schallschutz im grossen Tanzatelier (DORMA)
Hinweis Bodenaufbau
Ein ehemaliger Stepptanz-Weltmeister aus Winterthur bestätigt, dass die Ausführung des Bodens allerhöchsten Ansprüchen gerecht werde. Die Leiterin der Stepptanzschule und die Schüler bestätigen ihrerseits die exzellente Qualität der Bodenfläche.
Hinweis Spiegelfronten für Einrichtungen von Tanzstudios
Spiegel werden aus Floatglas hergestellt und mittels dünnster Beschichtung zu Spiegel gemacht. Im Falle dieses Projektes wurde erkannt, dass es verzugfreie Spiegel nicht gibt. Vergleiche mit
grossen Spiegelfronten im Theater und der Jazzschule Basel bestätigten dies. Es wurden mehrere Spiegel-Spezialisten beigezogen und alle mussten eingestehen, dass das Problem wohl bekannt sei, aber man nicht viel machen könne.
Befriedigende Lösung
Erst nach dem Aufkleben der Spiegel auf eine verzugfreie Spanplatte konnte das Ergebnis die Leiterin der Tanzschule zufrieden stellen. Die heiklen Stellen bleiben aber immer die Übergänge
mit den geschliffenen Kanten.
Wichtig
Dynamische Showtanz Lektionen sind nicht zu vergleichen mit statischen Ballettübungen.
Plane
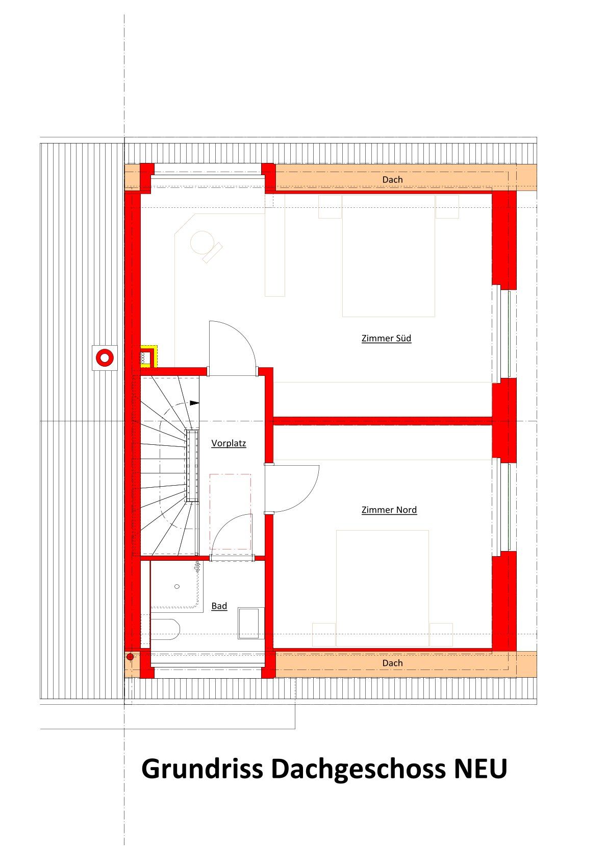
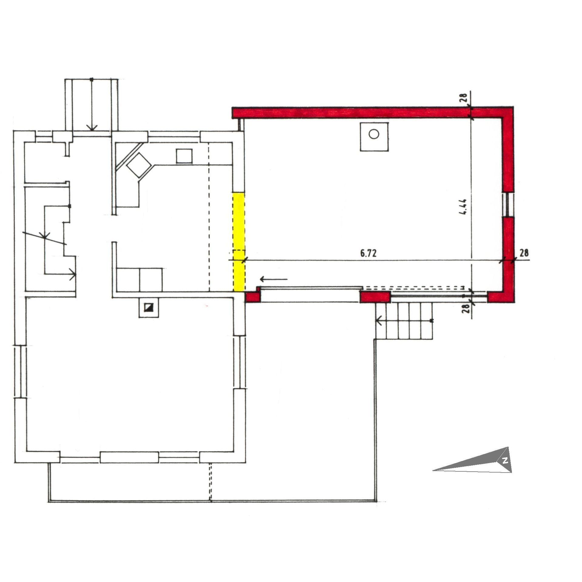
Umbau Obergeschoss in Einfamilienhaus in Ettingen
Energetische Dachsanierung / Umbau OG mit Bad
Volumen Umbau inkl. Dach: 250 m3
Netto-Mehrwohnfläche: 63 m2
Bauzeit: 8 Wochen (Mai-Juli 2014)
Detailbeschrieb
Umbauarbeiten
- Beim Haus aus den 70er Jahren wurde das Dach neu als Wärmedämmperimeter festgelegt. Die völlig ungenügenden 14 cm Glaswolle Isolation in der Decke zum unbegehbaren Dachraumüber dem OG wurde nicht ausgebaut. Die Dachdämmung inklusive Unterdach wurde dampfoffen in 26 cm Holzfaserplatten, zwischen 14 cm und über Sparren 12 cm ausgeführt. Die Anschlüsse Dach-Mauerwerk wurden winddicht erstellt. Die Eindeckung ist mit neuen Ziegeln.
- Die Spenglerarbeiten am Dach wurden ersetzt und angepasst in Cu.
- Alle Wände im OG sind in 6 cm Gipsplatten ausgeführt. Die gewünschte Öffnung der Räume mit neuer Nutzung und der Bau eines komfortablen Bades stand als Aufgabe an. Teilweise ergänzten eine Leichtbau Wand- und Vorwandkonstruktion (wegen den neuen Installationen) den Badbereich. Gleichzeitig wurde dabei die Westwand gedämmt.
- Eine Trennwand mit zwei Türen wurde abgebrochen, eine grössere Öffnung Schlafzimmer zu Treppenhaus wurde erstellt zugunsten einer Schiebetüre. Das Reduit wurde zugunsten eines grösseren Bades aufgehoben. Es entstand ein grosses und stimmiges Badezimmer mit Podest für eine freistehende Badewanne und Dusche.
- Die Lehmwand hinter der Badewanne, die Lehmdecke im Bad und die Lehmputze im ganzen OG prägen die Raumstimmung. Der Parkettboden im Schlaf-, Arbeitszimmer und Treppenhaus wurden durch die Parkettfirma ergänzt. Die Ablesbarkeit der ehemaligen Raumeinteilung ist damit noch gegeben.
- Im Badzimmer wurde der Bodenbelag/Sockel und Duschebereich in NATURO-FLOOR ausgeführt.
- Die bestehende unbehandelte Holztäferdecke wurde in den ehemaligen Wandbereichen sichtbar mit Täfer ergänzt und vom Maler weiss lasiert.
Plane
Anbau Balkon an Einfamilienhaus in Reinach
Balkon ohne Abstützung
Grösse des Balkons: 1.50 x 2.50 m
Die Auftraggeberin wünschte sich seit langer Zeit, im OG-Schlafzimmer einen südseitigen Balkon zu haben. Die Umsetzung war aufgrund der schlechten Mauerwerksvoraussetzungen (DURISOL) nur mit speziellen Klebankern möglich. Der Balkon sollte ein eigenständiger attraktiver Bauteil ohne Abstützungen werden.
Detailbeschrieb
Ausführung: Senn Konstruktionswerkstatt, Therwil
- Rahmen aus 4-Kantprofilen mittels CNS-Seilen und Injektionsanker an Fassade befestigt. Der Boden besteht aus drei in Rahmen eingelegten Gitterrosten. Die gesamte Konstruktion aller verwendeten Profile in feuerverzinktem Stahl
- Nebenarbeiten: Maurer - Abbruch bestehende Fensterbrüstung, Ersatz Fenster mit Fenstertüre Holz-Metall
Plane
Lukarnen-Vergrösserung und Einbau Velux in Bad, Therwil
Obergeschoss in Einfamilienhaus, Lukarnen-Vergrösserung + Einbau Velux in Bad
Ausführung: Juli 2017
Detailbeschrieb
Projekt
Die Bauherrschaft wünschte sich die Vergrösserung der bestehenden Lukarne,
welche bis anhin nur dem WC diente, um das angrenzende Zimmer räumlich aufzuwertenund dabei die schöne Sicht nach Westen zu ermöglichen. Gleichzeitig wurde im Bad ein Velux eingebaut, um in der Badewanne komfortabel duschen zu können.
Auftraggeber
private Bauherrschaft, Therwil
Beteiligte Unternehmer
Jäggi Holzbau AG, Biel-Benken
Dollinger AG Spenglerei, Ettingen
Ditzler AG Fensterbau, Arlesheim
Plane
Fenstereinbau in Einfamilienhaus, Therwil
Fenstereinbau Wohnraum gegen Garten im Westen
Fenster mit Türe: Glas u-Wert 1.0 / RAM 9.6 m2
Treppe mit feinen Gitterrost Tritten in feuerverzinktem Stahl
Lamellenstoren und Sonnenstore über neuem Sitzplatz
Baujahr 2011
Detailbeschrieb
Im neu erstandenen Haus aus den 90er Jahren wünschte sich die Bauherrschaft nach kurzer Zeit des Bewohnens im Wohnraum einen grossen Fenstereinbau gegen den grösseren Teil des Gartens im Westen.Man darf sich immer wieder wundern, wie oft Häuser in eine Parzelle ohne Bezug zur Umgebung eingepflanzt werden.Mit dem Einbau des Fensters wurde dieser Mangel auf einfache Weise kompensiert.Der Wohnwert des Hauses ist überproportional gestiegen.
Plane
Umbau Bad, Biel-Benken
Umbau Bad, Biel-Benken
• EFH Baujahr 1988, Bodenheizung
• Komplette Baderneuerung
• Abbruch aller Wand- und Bodenbeläge, Demontage aller Apparate, Armaturen, Zu- und Ableitungen
Detailbeschrieb
Erneuerung
- Bodenbelag: keramische Platten
- Wandbelag: keramische Platten, so wenig wie möglich, so viel wie nötig!
- Restliche Wand: Lehmputz
- Decke: Lehmplatten und Lehmputz
- Trennwand Dusche: Glas, zur Platzgewinnung und Transparenz
- Dusche: bodeneben, mit Platten belegt, Rinne als Bodenablauf
- Badewanne: so klein als möglich
- Licht: zusätzliche Beleuchtung zum Spiegelschrank mit LED-Band entlang der Dusche
- Heizung: bestehende Bodenheizung, zusätzlich elektrischer Heizkörper für Frottiertücher
- Wandbecken: eingebaut in Möbel aus Erlenholz
- Umbauzeit: Februar / März 2018
Plane
Heizwand und Fenstervergrösserung in Wohnküche, Therwil
Einbau einer Heizwand als Lehm-Raumbild und Fenstervergrösserung in Wohnküche
Auftraggeber: private Bauherrin, Therwil
Projekt: Die Bauherrin wünschte sich als Ersatz der konventionellen Konvektorenheizung eine in Lehm
eingebettete Heizwand. Gleichzeitig sollte die bestehende zweiteilige Fenstertüre in den Garten in eine
dreiteilige vergrössert werden, damit der Essraum und die Küche mehr Licht erhält.
Beteiligte Unternehmer
Baumeister: Edmund Jourdan AG, Muttenz
Lehmbau: Rainer Hettenbach, Therwil und Georg Paul, Laufen
Heizung: Moret-Brodmann AG, Hofstetten
Elektriker: Ermacora AG, Oberwil
Fenstertüre: Ditzler Schreinerei, Arlesheim
Detailbeschrieb
Heizwand in Lehm
- Die bestehende Konvektorenheizung wurde vom Heizungsinstallateur demontiert und ein neuer Anschluss für die Wandheizung gemacht.
- Direkt auf die bestehende Wand wurde ein speziell hergestelltes Chromstahl-Profil (40 x 40 mm) montiert, welches als Rahmenprofil die Wandheizungsfläche begrenzen soll.
- Auf die ganze, abgegrenzte Fläche wurde ein Baukleber aufgestrählt.
- Darauf wurden die 16 mm Wandheizungs-Verbundrohre auf Klemmschienen montiert.
- Der Lehmputz wurde von Rainer Hettenbach aufbereitet. Das Grundmaterial stammt aus einem Aushub in Oberwil, welchem feiner Strohhäcksel beigefügt wurde. Diese Mischung wurde zusammen mit der Bauherrschaft von Hand eingebaut.
- Nach der Trocknungszeit von 3 Tagen wurde vollflächig ein Lehm-Grundputz aufgezogen und ein Kunststoffnetz eingebettet.
- Zum Schluss wurde ein mit der Bauherrschaft farblich abgestimmter Lehmfeinputz in Spachteltechnik aufgebracht. Es entstand eine hochwertige Heizwand, welche sich als Bild im Raum wunderschön präsentiert, die benötigte Wärme abgibt und die gewünschte Behaglichkeit erzeugt.
Fenstervergrösserung
- Die Türöffnung zum Garten wurde vom Baumeister vergrössert, ein neuer Sturz wurde eingezogen und neu verputzt.
- Um mehr Licht in die Wohnküche zu bringen, wurde die neue innere Leibung abgeschrägt.
- Die bestehende zweitürige Fenstertüre wurde durch eine dreiteilige 3-IV 0.5 ersetzt.
- Der Sockel und das Gewände (Imitation) wurden an der Fassade neu aufgebracht.
Plane
House Ngoh Bamenda, Kamerun
Planung eines eingeschossigen Hauses ohne Unterkellerung
Realisierung 2013
Der in der Schweiz ansässige und für die Basler Chemie arbeitende befreundete Kameruner
meldet die Absicht an, ausserhalb Bamenda ein Einfamilienhaus zu bauen.
Weil es ihm ein Anliegen war, die Planung nicht einem lokalen Architekten zu übergeben,
plante unser Büro ein qualitativ herausragendes Haus. Unsere Kameruner Bauerfahrung
war für ihn wichtig.
Detailbeschrieb
- Aushub in Laterit Boden von Hand
- Kanalisation in eigenen Septic Tank, Wasseranschluss an öffentliches Wassernetz, Stromanschluss an öffentliches Stromnetz
- Einbringen einer Fundamentsohle aus Beton, Bau des äusseren Fundamentes mit Zementmörtel und beschlagenen Basaltsteinen (dressed blackstones)
- Innere Fundamente Steinbett aus hellen Steinen (whitestones)
- Hinterfüllen von Hand und mit Handstampfern verdichtet
- Whitestones "hardcore" unter Betonplatte (Nutzboden)
- Betonboden mit Zementüberzug, Keramikplattenbelag im ganzen Haus
- Veranda Betonplatte mit Zementüberzug, Stützen Veranda in Stahl gestrichen
- Alle Wände aus lokal hergestellten Zementsteinen
- Dachkonstruktion Nagelbinder in lokalem Eukalyptus Holz
- Natürliche Belüftung zur Ventilation des Dachraumes mittels Öffnungen
- Bedachung in 6/10 Aluformblech
Plane
Projekt Auditorium Berufsschule COTECC Bafut, Kamerun
Planung einer Versammlungshalle mit Bibliothek, Internet Café, WC’s Küche etc.
Gebäude Grundfläche ca. 800 m2
Detailbeschrieb
Die in den Jahren 1983 bis 1990 entstandene Berufsschule COTECC (Community Technical & Commercial College) nahe der Stadt Bamenda im Grasland von Kamerun, benötigt einen grossen Versammlungsraum. Die Schule hat heute 850 Schüler, davon etwa 600 Internatsschüler.
Fehlendes Geld ist bei der vom Staat nicht unterstützten Berufsschule stets ein Thema.Für die damalige Planung und Bauleitung waren Claudia Degen und Rainer Hettenbach verantwortlich.Daraus ergibt sich, dass die Statik und die Architektur des Auditoriums im Detail in der Schweiz geplant werden sollte.
Die Projektleitung und die Bauleitung wird degen hettenbach & partner übernehmen, falls das Projekt je realisiert wird. Die Ausführung soll mit ehemaligen Absolventen der Bereiche Baumeister und Zimmer-leute realisiert werden. Die verantwortliche lokale Autorität ist der Fon (König) von Bafut Abumbi II.
Das Gebäude soll künftig Anlässen wie Theater und Diplomfeiern mindestens 500 Studenten Platz bieten. Weitere Räume, wie Computerraum, Internetcafé, Bibliothek mit Leseraum, Büro, WC’s etc. sollen integriert werden.
Das Gebäude erreicht aus diesem Grund für Kameruner Dorfverhältnisse eine stattliche Grösse und ist vergleichbar mit einem Kirchenbau.
Das Projekt sieht ein Quadrat vor mit einer Seitenlänge von 28 Metern und einer Diagonale von 40 Metern. Auf einer zentralen Säule sollen die Hauptträger auflagern. Es ist vorgesehen, die Holzelemente mit einfachen vernagelten und verschraubten Drehgelenken und Kastenträgern aus lokalem Hartholz aus einer Sägerei zu bauen. Statisch tragende Pfeiler sind in Beton und Naturstein vorgesehen, nicht tragende Wände sollen aus handgemachten Lehmsteinen erstellt
und verputzt werden.
Plane
Museum, Nigeria
Lehmbauprojekt Neubau Museum EYN Geschwisterkirche (Ekklesiyar Yan'nua a Nigeria)
Baujahr 2007
Als zweites Lehmbauprojekt nach 2004 konnte die ILMI-Gruppe der reformierten Kirche
Oberwil-Therwil-Ettingen via die Basler Mission (Mission 21) einen Museumsbau realisieren.
Wiederum konnte ein Lehmbaufachmann aus Basel zum Aufbau des Museums
nach Kwarhi bei Mubi Adamawa State entsandt werden.
Detailbeschrieb
Die Idee für ein Museum der EYN Kirche entstand aus dem lokal formulierten Bedürfnis heraus, die vielen Relikte und Fotos der Kirche an einem speziell dafür gebauten Ort der Öffentlichkeit zugänglich zu machen: es steht im EYN Headquarter in KWARHI.
Dieses erste Lehmbauprojekt für die EYN profitierte stark von den gemachten Erfahrungen des ersten Projektes, dem Bürogebäude in Mubi, das nur gerade 20 km entfernt liegt.
Aus diesem Grunde reichte es, dass ein Lehmbaufachmann aus Basel die Arbeiten begleitete. Der Afrika erfahrene Baumeister Nico Stöcklin aus Basel ging für ca. 2 Monate nach Kwarhi.
Der Verantwortliche auf der Baustelle war Baumeister Mordechai Bwalia, der auch
das erste Bauwerk vor 3 Jahren begleitete. Die fachliche Unterstützung aus der Schweiz war insofern wichtig, weil sich die freiwillig arbeitenden Lokalhandwerker ganz neu formierten.
Durch die wiederholte Begleitung konnte sich Mordechai Bwalia ökobaulich konsolidieren.
Plane
Bürogebäude der EYN Kirche in Mubi, Nord-Nigeria
Lehmbauprojekt Bürogebäude zur EYN-Geschwisterkirche (Ekklesiyar Yan'nua a Nigeria)
Als krönender Abschluss einer fünfjährigen Motivationsarbeit und durch direkte Beziehung zur EYN
konnte die ILMI-Gruppe der ref. Kirche Oberwil-Therwil-Ettingen dieses erste Lehmbauprojekt
via Basler Mission (Mission 21) realisieren.
Durch die Beziehung der ILMI-Gruppe zum Fachverband IG Lehm Schweiz konnten drei Lehmbau-
fachleute für sechs Wochen zum Aufbau des Bürogebäudes in Mubi (Adamawa State) entsandt werden.
In kürzester Zeit entstand zusammen mit dem einheimischen Bauteam etwas Grosses!
Detailbeschrieb
Das neue TEE-Büro (Theological Education by Extention), Baujahr 2004
Bericht von Renate Ellmenreich + Gunnar Berndsen (GB 2005 verstorben)
Es war lange ein Traum – und nun ist es traumhaft geworden, das neue TEE-Büro in unserem Hof. Es ist ein schlichter, länglicher Bau mit einem überstehenden Dach ringsherum. So gesehen nichts Besonderes. Das Besondere ist das Material, es ist größtenteils aus Lehm. Die Idee dazu kam von Rainer Hettenbach und Andreas Fankhauser von der Unterstützer-gruppe ILMI aus dem bei Basel gelegenen Ettingen. ILMI hatte schon jahrzehntelang unsere Kirche über die Basler Mission unterstützt, als sie den Vorschlag machten, einen Teil ihrer Unterstützung für ein besonderes Projekt zu verwenden, nämlich für den Bau moderner und zugleich nachhaltiger Lehmhäuser. Früher wurde hier ja fast ausschließlich mit Lehm gebaut, bis die Zementsteine kamen. Heute meint ein Großteil der Menschen irrtümlicherweise, dass ein modernes und haltbares Haus aus Zementsteinen gefertigt sein müsste. Die Hitze im Inneren dieser Steinhäuser wird in Kauf genommen. Wer’s hat, kann sich ja gleich Klimaanlagen mit einbauen, für deren Betrieb allerdings auch Riesengeneratoren notwendig sind.
Kurz und gut: die ILMI-Gruppe hat mit der EYN eine Vereinbarung über den Bau nachhaltig gefertigter Lehmhäuser getroffen, die das eben beschriebene Vorurteil sichtbar widerlegen sollen. Tatsächlich sind die sonnengetrockneten Lehmsteine, die für unser Büro verwendet worden sind, um ein Vielfaches härter als die hiesigen Zementsteine. Da drei von ILMI gesandte Bauleute auch gleich noch die Decke aus Lehm gegossen haben, ist es in den Räumen höhlenartig kühl. Eine
lange Veranda ziert die Eingangsfront. Ein hochgelegtes Betonfundament schützt die Erdmauern vor Regenschäden. Ein vielseitiger Anstrich innen lässt den Lehmverputz durchscheinen, ohne den Eindruck der Modernität zu schmälern. Und TEE hat endlich ein Büro, in dem alle Mitarbeiter/innen Platz haben, mit Ausnahme derer, die unsere technischen Geräte bedienen. Für sie haben wir das
ursprüngliche Büro umgestaltet.
Drei Schweizer Lehmbauexperten haben mit den Nigerianern sechs Wochen zusammengearbeitet. Auch der Austausch beidseitiger Erfahrungen im Bauprozess gehört zu dem neuen Projekt. Das Ergebnis spricht für die Zusammenarbeit. Die Endauswertung steht zwar noch aus, aber schon jetzt hören wir immer wieder: "ja, solch ein Haus will ich mir auch bauen”. Was ermutigend ist, war der Nachahmeffekt doch das erklärte Ziel. Und ganz verkehrt scheinen wir nicht gelegen zu haben im Treffen der Balance zwischen hoher Qualität und einfach nachzuahmender Bauweise.Es steht zu hoffen, dass noch mehr solcher Lehmbauten entstehen, nicht nur in unserer Kirche.














































































































































































